- 価格
-
2860万円~3990万円
月々の支払い額を見る
- 専有面積
-
66.32㎡~80.96㎡
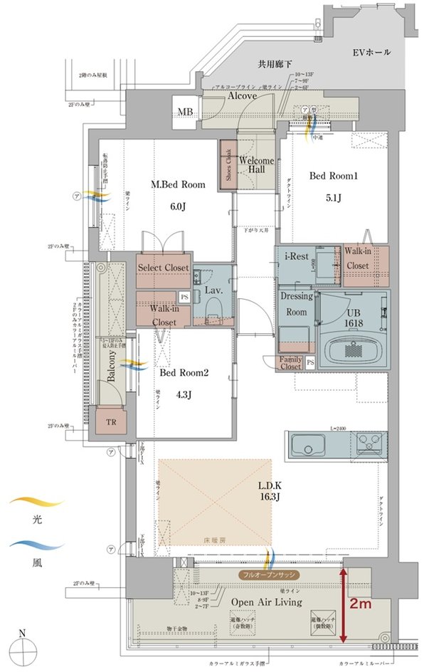
- 間取り
-
3LDK、4LDK
間取りを見る(3件)
- 販売スケジュール
-
先着順申込受付中

