- 価格
-
6598万円~8698万円
月々の支払い額を見る
- 専有面積
-
60.82㎡~90.04㎡
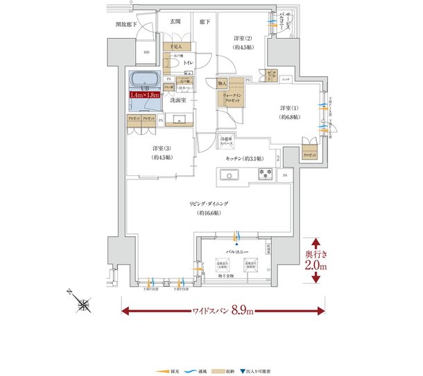
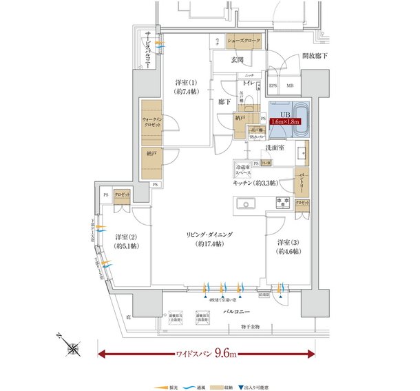
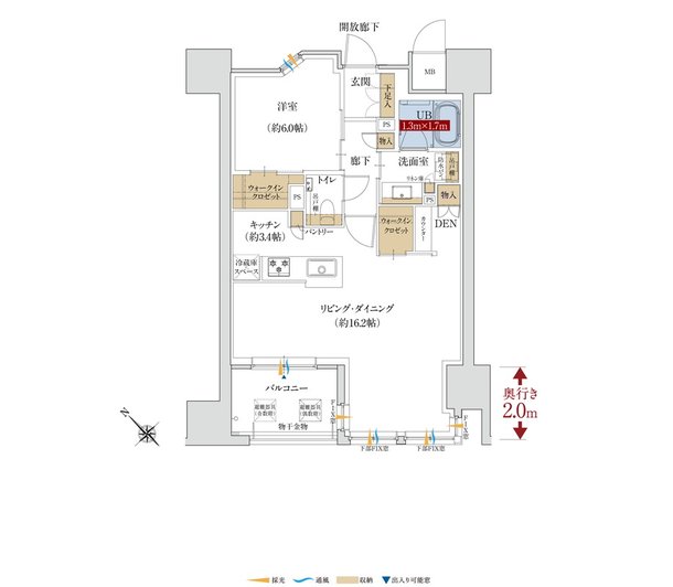
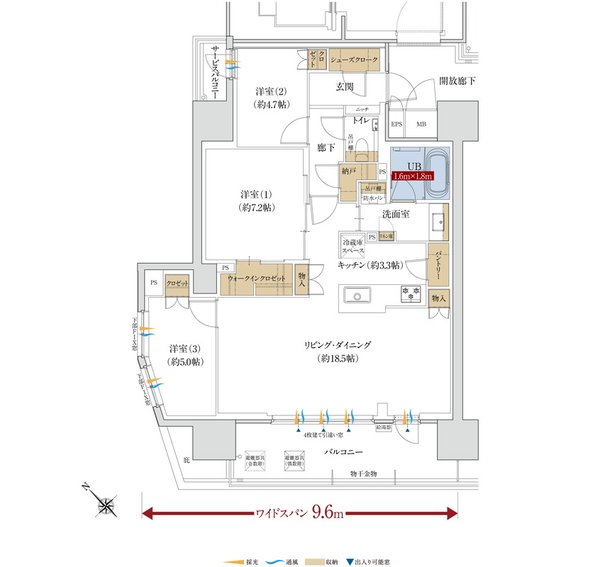
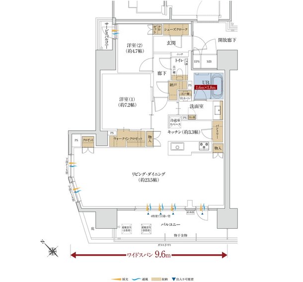
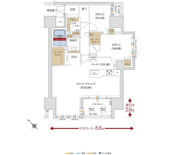
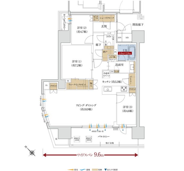
- 間取り
-
2LDK、3LDK
間取りを見る(6件)
- 販売スケジュール
-
先着順申込受付中

