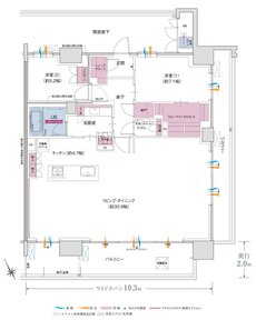
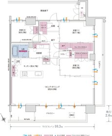
間取り
この物件の詳細情報に戻る2LDK掲載5件
※掲載の図面は計画段階のもので変更が生じる場合がございます。
※バルコニーの奥行は、壁の中心から手すり壁の中心までの寸法であり、実際に使用できる寸法とは異なります。
※無償オプションには期限がございます。詳しくは係員にお尋ねください。
【メニュープラン検討上のご注意】
・無償オプション・メニュープランには受付期限があります。
・メニュープランに記載の下がり天井、梁型等の位置は施工上の都合、その他諸事情により変更となる場合がございますので予めご了承ください。
・各階のバルコニーの形状・仕様に異なる部分がございます。詳しくは基本プランを参照してください。
関連する他の物件も見てみる
特徴
- 複数沿線利用可能(4)
- 一人暮らし・二人暮らし向け(4)
- 駅近(駅徒歩5分以内・駅直結)(4)
- 子どもと暮らす(4)
- I型キッチン(3)
- 宅配ボックス(3)
- 対面キッチン(3)
- モデルルーム公開中(3)
- 浴室暖房換気乾燥機(3)
- 浴室に窓(3)
- 広いバルコニー(3)
- シューズインクローゼット(3)
- ウォークインクローゼット(3)
- エコマンション(2)
- ZEHマンション(2)
- 南西向き(2)
- 出入口が2か所以上あるキッチン(2)
- ハンズフリーキー(2)
- 24時間ゴミ出し可能(2)
- 複層ガラス(ペアガラス)(2)
- 可変式間仕切り(2)
- 広いリビング(2)
- 2面バルコニー(2)
- アイランドキッチン(2)
- アウトフレーム工法(1)
- 平置き駐車場(1)
- 天井カセット型エアコン(1)
- オープンキッチン(1)
地域
間取り
価格帯
不動産会社
駅
沿線

