- 価格
-
3970万円~9920万円
月々の支払い額を見る
- 専有面積
-
60.65㎡~107.12㎡
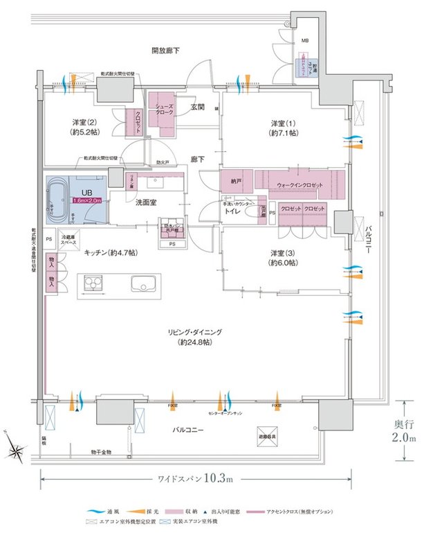
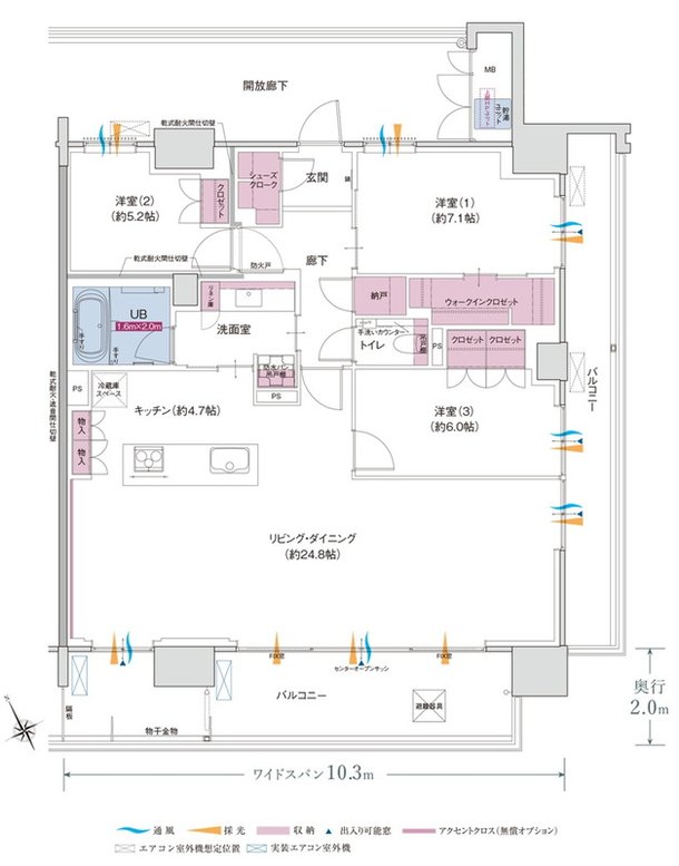
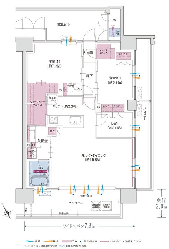
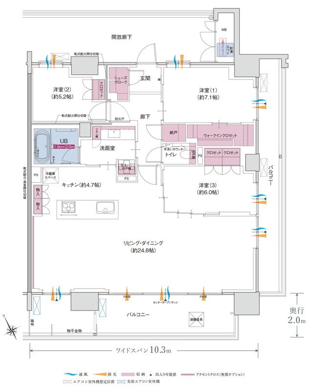
- 間取り
-
2LDK、3LDK
間取りを見る(10件)
- 販売スケジュール
-
先着順申込受付中

