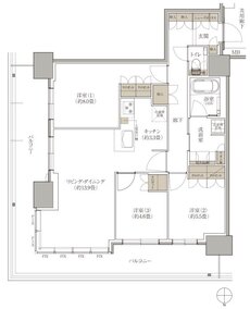
間取り
この物件の詳細情報に戻る3LDK掲載4件
WIC : ウォークインクロゼット SIC : シューズインクロゼット
※掲載の間取り図は計画段階のもので、今後変更になる場合がございます。
関連する他の物件も見てみる
特徴
- 子どもと暮らす(73)
- 対面キッチン(72)
- I型キッチン(72)
- ウォークインクローゼット(66)
- 一人暮らし・二人暮らし向け(56)
- 複数沿線利用可能(51)
- モデルルーム公開中(44)
- 南向き(42)
- 駅近(駅徒歩5分以内・駅直結)(40)
- 玄関からリビングが見えない間取り(39)
- 販売前・販売予定(38)
- シューズインクローゼット(37)
- 宅配ボックス(36)
- ZEHマンション(35)
- 広いリビング(26)
- 防災設備(26)
- 西向き(20)
- 大規模マンション(20)
- 東向き(19)
- 電気自動車対応(18)
- L字バルコニー(16)
- ラウンジ(14)
- タワーマンション・高層マンション(7)
- ゲストルーム(6)
- コンシェルジュサービス(5)
- 耐震・免震・制振(4)
- 北向き(4)
- 太陽光発電(2)
- 独立型(クローズ型)キッチン(2)
地域
間取り
不動産会社
駅
沿線

