- 価格
-
2898万円~5498万円
月々の支払い額を見る
- 専有面積
-
66.38㎡~92.91㎡
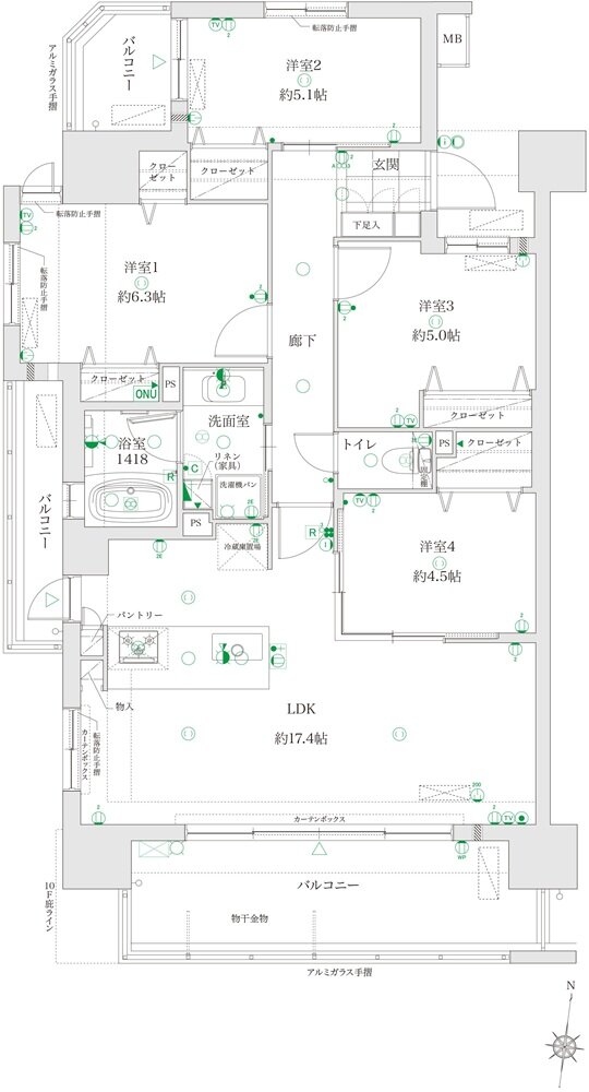
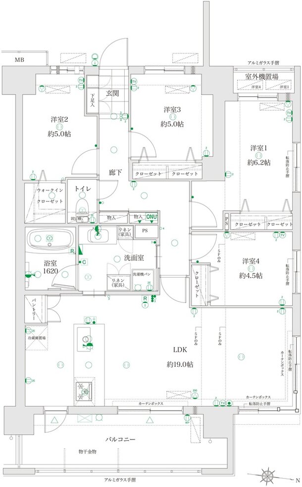
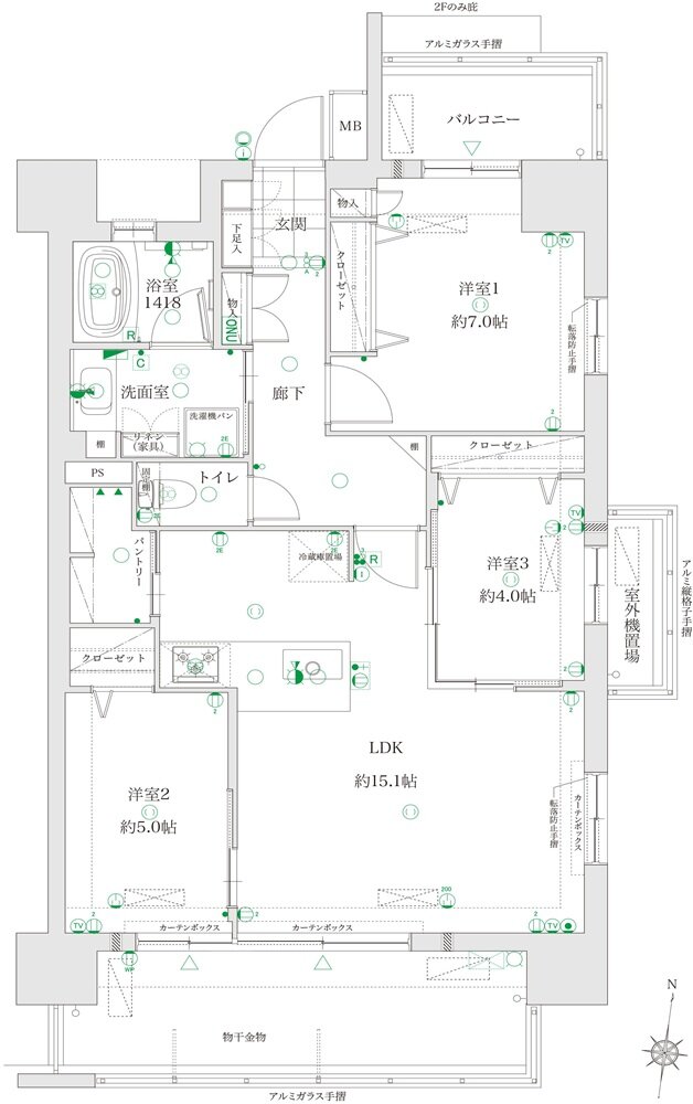
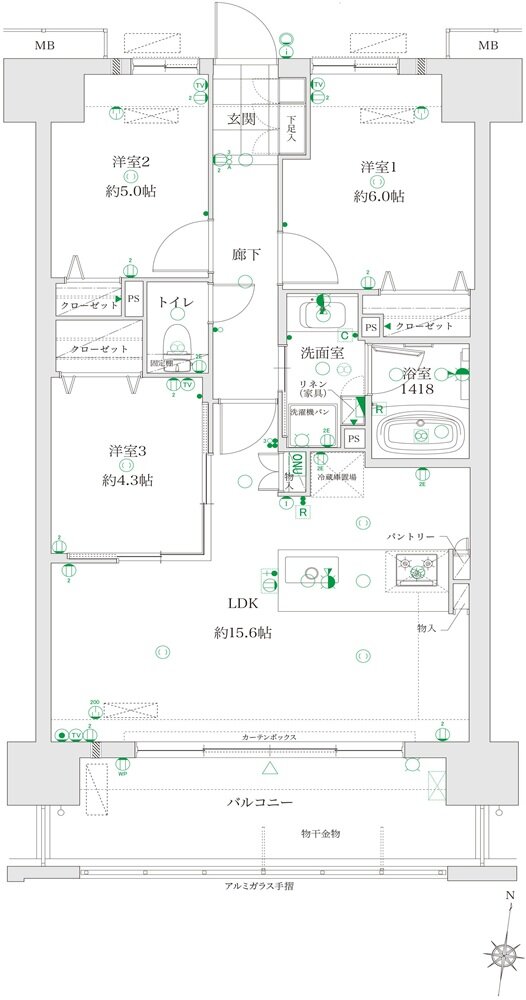
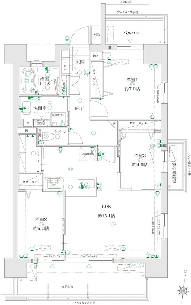
- 間取り
-
3LDK〜4LDK
間取りを見る(4件)
- 販売スケジュール
-
先着順申込受付中

