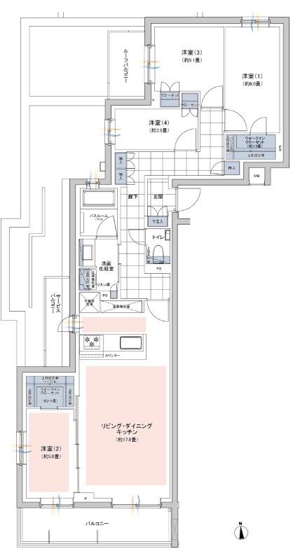
間取り
この物件の詳細情報に戻る2LDK掲載3件
3LDK掲載2件
WIC:ウォークインクローゼット SC:シューズクローク N:納戸
※掲載の図面は、計画段階の設計図を基に描いたものであり、今後変更になる場合があります。
関連する他の物件も見てみる
特徴
- 子どもと暮らす(186)
- I型キッチン(180)
- 対面キッチン(180)
- ウォークインクローゼット(173)
- 一人暮らし・二人暮らし向け(163)
- 床暖房(158)
- 可変式間仕切り(135)
- 玄関からリビングが見えない間取り(129)
- 食器洗い乾燥機(食洗機)(128)
- 浴室暖房換気乾燥機(114)
- 平置き駐車場(112)
- 販売前・販売予定(109)
- ペット可(95)
- 24時間ゴミ出し可能(86)
- 南向き(84)
- 2面バルコニー(84)
- ZEHマンション(82)
- 西向き(79)
- 防災設備(74)
- 出入口が2か所以上あるキッチン(54)
- 省エネ対応(36)
- 南向き中心(27)
地域
間取り
価格帯
不動産会社
駅
沿線

