アクタス博多グランミライ プレミアムの間取り一覧

お気に入りに
追加する
お気に入りに
追加済み

〜1LDK(1R・1K・1DK含む)掲載1

2LDK掲載4

3LDK掲載6

4LDK掲載4

WIC:ウォークインクローゼット
SIC:シューズクローク
FC:ファミリークローゼット
N:納戸

※掲載の図面は計画段階につき変更となる場合がございます。

関連する他の物件も見てみる

アクタス博多グランミライ プレミアムに関連する条件でマンションを探す
アクタス博多グランミライ プレミアム 間取り D type【メニュープラン1】
タイプ

D type【メニュープラン1】

間取り

1LDK+WIC+SIC+FC

専有面積

55.07㎡

バルコニー面積

10.92㎡

  • 玄関からリビングが見えない間取り
  • ウォークインクローゼット
  • シューズインクローゼット
  • 浴室に窓
  • スロップシンク
  • 東向き
アクタス博多グランミライ プレミアム 間取り D type
タイプ

D type

間取り

2LDK+WIC+SIC

専有面積

55.07㎡

バルコニー面積

10.92㎡

  • 玄関からリビングが見えない間取り
  • ウォークインクローゼット
  • シューズインクローゼット
  • 浴室に窓
  • スロップシンク
  • 東向き
アクタス博多グランミライ プレミアム 間取り D type【メニュープラン2】
タイプ

D type【メニュープラン2】

間取り

2LDK+WIC+SIC

専有面積

55.07㎡

バルコニー面積

10.92㎡

  • 玄関からリビングが見えない間取り
  • 和室付き
  • ウォークインクローゼット
  • シューズインクローゼット
  • 浴室に窓
  • スロップシンク
  • 東向き
アクタス博多グランミライ プレミアム 間取り H type【メニュープラン1】
タイプ

H type【メニュープラン1】

間取り

2LDK+WIC+N

専有面積

72.24㎡

バルコニー面積

13.75㎡

  • ウォークインクローゼット
  • 浴室に窓
  • スロップシンク
  • 南西向き
アクタス博多グランミライ プレミアム 間取り H type【メニュープラン2】
タイプ

H type【メニュープラン2】

間取り

2LDK+WIC+N

専有面積

72.24㎡

バルコニー面積

13.75㎡

  • ウォークインクローゼット
  • 浴室に窓
  • スロップシンク
  • 南西向き
アクタス博多グランミライ プレミアム 間取り H type
タイプ

H type

間取り

3LDK+WIC

専有面積

72.24㎡

バルコニー面積

13.75㎡

  • ウォークインクローゼット
  • 浴室に窓
  • スロップシンク
  • 南西向き
アクタス博多グランミライ プレミアム 間取り I type【メニュープラン1】
タイプ

I type【メニュープラン1】

間取り

3LDK+WIC+SIC+N

専有面積

88.77㎡

バルコニー面積

13.27㎡

  • 玄関からリビングが見えない間取り
  • ウォークインクローゼット
  • シューズインクローゼット
  • 2面バルコニー
  • L字バルコニー
  • スロップシンク
  • 南向き
アクタス博多グランミライ プレミアム 間取り I type【メニュープラン2】
タイプ

I type【メニュープラン2】

間取り

3LDK+WIC+SIC+N

専有面積

88.77㎡

バルコニー面積

13.27㎡

  • 玄関からリビングが見えない間取り
  • ウォークインクローゼット
  • シューズインクローゼット
  • 2面バルコニー
  • L字バルコニー
  • スロップシンク
  • 南向き
アクタス博多グランミライ プレミアム 間取り J type【メニュープラン1】
タイプ

J type【メニュープラン1】

間取り

3LDK+WIC+SIC

専有面積

86.94㎡

バルコニー面積

20.99㎡

  • 玄関からリビングが見えない間取り
  • ウォークインクローゼット
  • シューズインクローゼット
  • 出入口が2か所以上あるキッチン
  • 2面バルコニー
  • スロップシンク
  • 南向き
アクタス博多グランミライ プレミアム 間取り Kr type【メニュープラン1】
タイプ

Kr type【メニュープラン1】

間取り

3LDK+WIC+SIC+N

専有面積

91.65㎡

バルコニー面積

14.00㎡

備考

ルーフバルコニー面積:28.78㎡

  • ウォークインクローゼット
  • シューズインクローゼット
  • 浴室に窓
  • 2面バルコニー
  • ルーフバルコニー
  • スロップシンク
  • 東向き
アクタス博多グランミライ プレミアム 間取り Kr type【メニュープラン2】
タイプ

Kr type【メニュープラン2】

間取り

3LDK+WIC+SIC

専有面積

91.65㎡

バルコニー面積

14.00㎡

備考

ルーフバルコニー面積:28.78㎡

  • ウォークインクローゼット
  • シューズインクローゼット
  • 浴室に窓
  • 2面バルコニー
  • ルーフバルコニー
  • スロップシンク
  • 東向き
アクタス博多グランミライ プレミアム 間取り I type
タイプ

I type

間取り

4LDK+WIC+SIC

専有面積

88.77㎡

バルコニー面積

13.27㎡

  • 玄関からリビングが見えない間取り
  • ウォークインクローゼット
  • シューズインクローゼット
  • 2面バルコニー
  • L字バルコニー
  • スロップシンク
  • 南向き
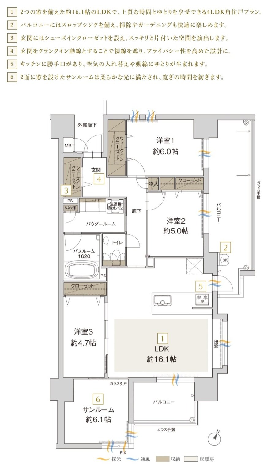
アクタス博多グランミライ プレミアム 間取り J type
タイプ

J type

間取り

4LDK+WIC+SIC

専有面積

86.94㎡

バルコニー面積

20.99㎡

  • 玄関からリビングが見えない間取り
  • 可変式間仕切り
  • ウォークインクローゼット
  • シューズインクローゼット
  • 出入口が2か所以上あるキッチン
  • 2面バルコニー
  • スロップシンク
  • 南向き
アクタス博多グランミライ プレミアム 間取り J type【メニュープラン2】
タイプ

J type【メニュープラン2】

間取り

4LDK+WIC+SIC

専有面積

86.94㎡

バルコニー面積

20.99㎡

  • 玄関からリビングが見えない間取り
  • 可変式間仕切り
  • ウォークインクローゼット
  • シューズインクローゼット
  • 出入口が2か所以上あるキッチン
  • 2面バルコニー
  • スロップシンク
  • 南向き
アクタス博多グランミライ プレミアム 間取り Kr type
タイプ

Kr type

間取り

4LDK+WIC+SIC

専有面積

91.65㎡

バルコニー面積

14.00㎡

備考

ルーフバルコニー面積:28.78㎡

  • 和室付き
  • ウォークインクローゼット
  • シューズインクローゼット
  • 浴室に窓
  • 2面バルコニー
  • ルーフバルコニー
  • スロップシンク
  • 東向き

このページの一番上へ