サングレート今宿駅南の間取り一覧

お気に入りに
追加する
お気に入りに
追加済み

3LDK掲載1

4LDK掲載1

※スイッチやコンセント等の凡例はおおよその位置を示すもので、実際の位置とは異なります。寸法や形状位置等は変更になる場合があります。

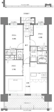
サングレート今宿駅南 間取り C type
タイプ

C type

間取り

3LDK

専有面積

63.50㎡

バルコニー面積

12.70㎡

  • ウォークインクローゼット
  • 広いバルコニー
  • スロップシンク
  • 南向き
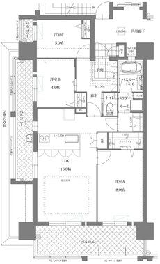
サングレート今宿駅南 間取り D type
タイプ

D type

間取り

4LDK

専有面積

82.92㎡

バルコニー面積

22.15㎡

備考

サービスバルコニー面積:2.12㎡

  • ウォークインクローゼット
  • 出入口が2か所以上あるキッチン
  • 広いバルコニー
  • 2面バルコニー
  • スロップシンク
  • 南向き

このページの一番上へ