アルファステイツ四日市新正II 間取り A TYPE[基本プラン]
タイプ

A TYPE[基本プラン]

間取り

3LDK +ウォークインクロゼット

専有面積

69.41㎡

バルコニー面積

23.42㎡

備考

アルコーブ面積:2.69㎡

  • アルコーブ
  • 出入口が2か所以上あるキッチン
  • 2面バルコニー
  • L字バルコニー
  • スロップシンク
  • 南東向き
アルファステイツ四日市新正II 間取り B TYPE[基本プラン]
タイプ

B TYPE[基本プラン]

間取り

3LDK

専有面積

64.89㎡

バルコニー面積

11.02㎡

備考

アルコーブ面積:2.47㎡

  • アルコーブ
  • スロップシンク
  • 南東向き
アルファステイツ四日市新正II 間取り C TYPE[基本プラン]
タイプ

C TYPE[基本プラン]

間取り

3LDK +ウォークインクロゼット

専有面積

64.89㎡

バルコニー面積

11.02㎡

備考

アルコーブ面積:2.47㎡

  • アルコーブ
  • ウォークインクローゼット
  • スロップシンク
  • 南東向き
アルファステイツ四日市新正II 間取り D TYPE[基本プラン]
タイプ

D TYPE[基本プラン]

間取り

2LDK +ミタスモパウダールーム +ウォークインクロゼット

専有面積

60.37㎡

バルコニー面積

10.26㎡

備考

アルコーブ面積:2.25㎡

  • アルコーブ
  • ウォークインクローゼット
  • スロップシンク
  • 南東向き
アルファステイツ四日市新正II 間取り E TYPE[基本プラン]
タイプ

E TYPE[基本プラン]

間取り

2LDK +ウォークインクロゼット

専有面積

57.92㎡

バルコニー面積

11.02㎡

備考

アルコーブ面積:1.34㎡

  • アルコーブ
  • ウォークインクローゼット
  • スロップシンク
  • 南東向き
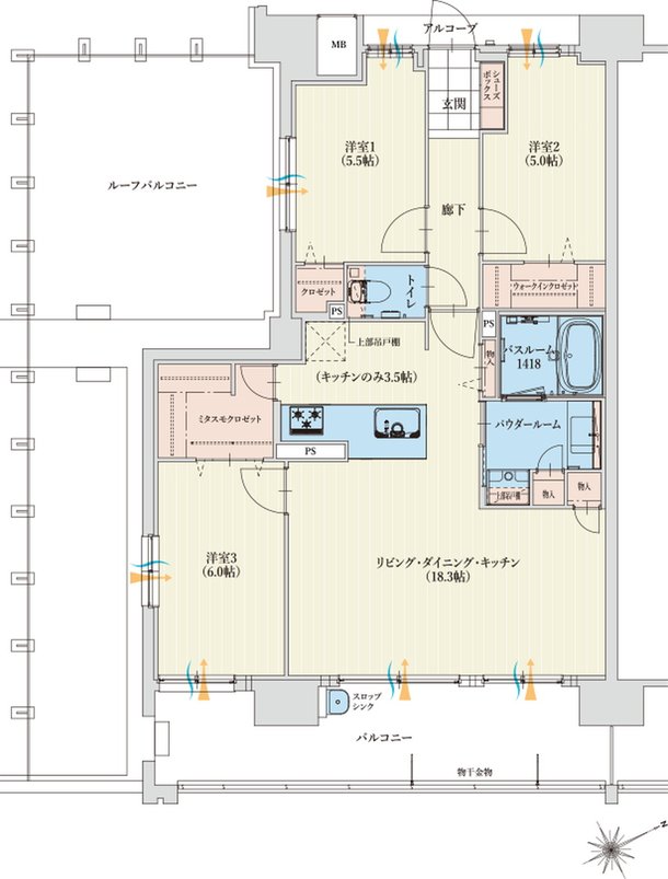
アルファステイツ四日市新正II 間取り F TYPE[基本プラン]
タイプ

F TYPE[基本プラン]

間取り

3LDK +ミタスモクロゼット +ウォークインクロゼット

専有面積

77.82㎡

バルコニー面積

10.07㎡

備考

アルコーブ面積:2.44㎡

  • アルコーブ
  • ウォークインクローゼット
  • 出入口が2か所以上あるキッチン
  • スロップシンク
  • 南東向き
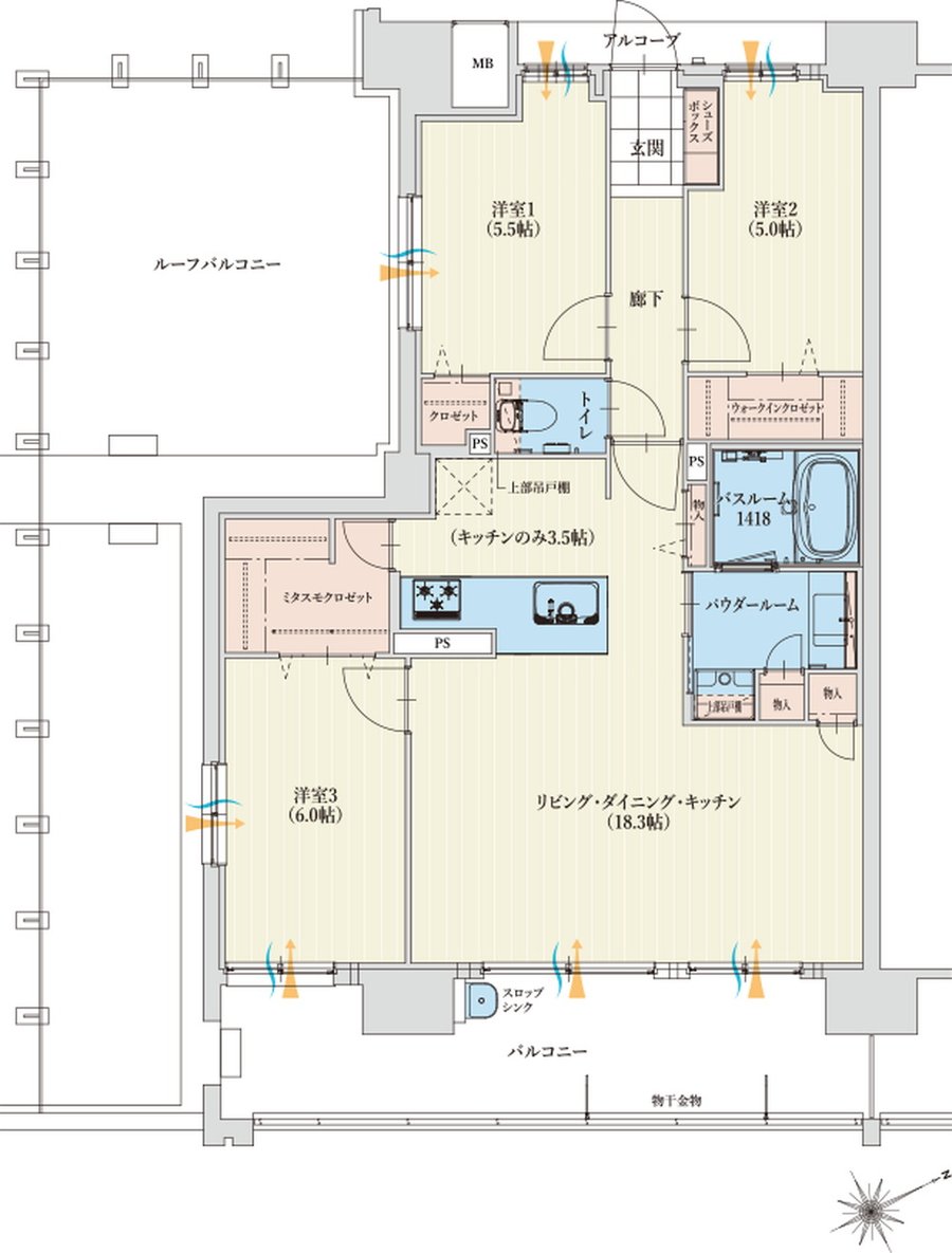
アルファステイツ四日市新正II 間取り G TYPE[基本プラン]
タイプ

G TYPE[基本プラン]

間取り

3LDK +ミタスモクロゼット +ウォークインクロゼット +ルーフバルコニー

専有面積

79.22㎡

バルコニー面積

15.67㎡

備考

アルコーブ面積:2.47㎡
ルーフバルコニー面積:41.27㎡

  • ウォークインクローゼット
  • 2面バルコニー
  • ルーフバルコニー
  • スロップシンク
  • 南東向き

このページの一番上へ