- 価格
-
3470万円~4440万円
月々の支払い額を見る
- 専有面積
-
34.51㎡~40.04㎡
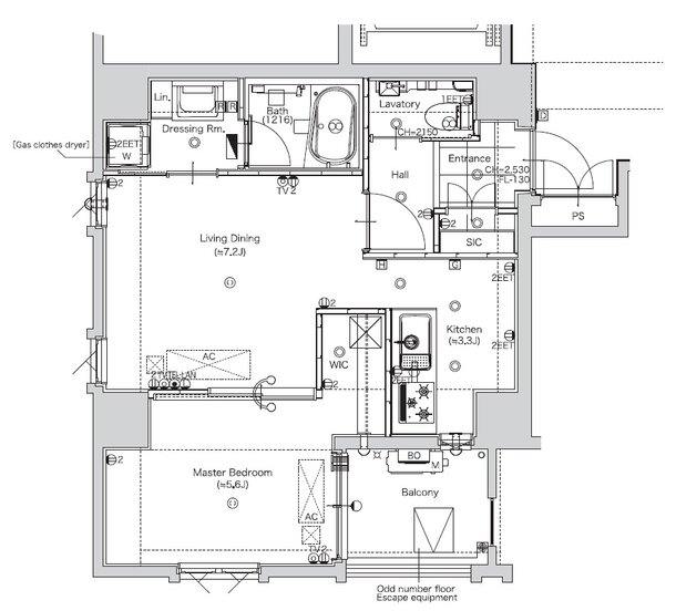
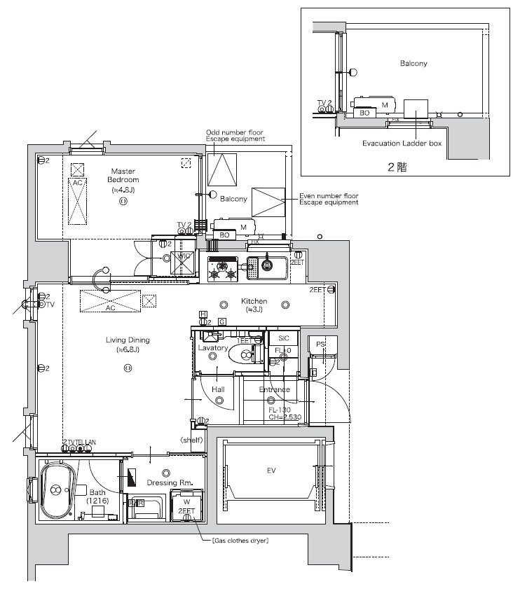
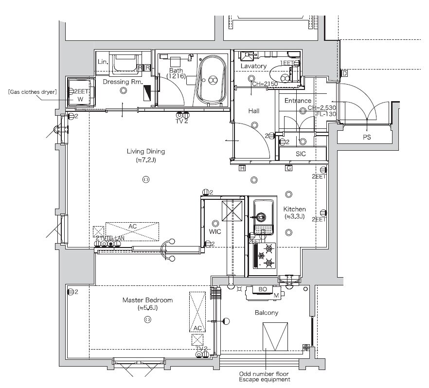
- 間取り
-
1LDK
間取りを見る(1件)
- 販売スケジュール
-
先着順申込受付中

