- 価格
-
8290万円、8690万円
月々の支払い額を見る
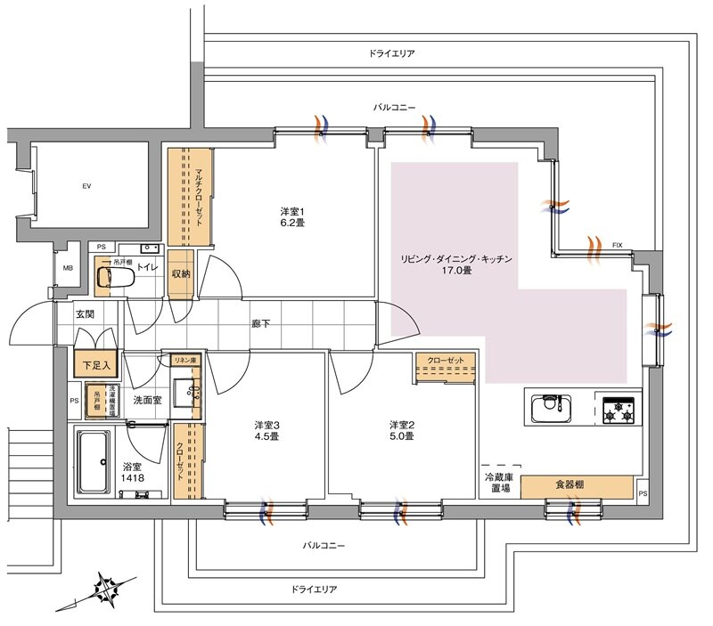
- 専有面積
-
71.57㎡
- 間取り
-
3LDK
間取りを見る(1件)
- 販売スケジュール
-
先着順申込受付中

