グランドパレス大分駅南タワー 間取り A type
タイプ

A type

間取り

4LDK+WIC

専有面積

79.8㎡

バルコニー面積

21.32㎡

備考

MB面積:1.37㎡

  • 可変式間仕切り
  • ウォークインクローゼット
  • 出入口が2か所以上あるキッチン
  • 2面バルコニー
  • 南西向き
グランドパレス大分駅南タワー 間取り B type
タイプ

B type

間取り

2LDK+WTC

専有面積

60.9㎡

バルコニー面積

11.6㎡

備考

MB面積:1.26㎡

  • ウォークインクローゼット
  • 浴室に窓
  • 南西向き
グランドパレス大分駅南タワー 間取り C type
タイプ

C type

間取り

3LDK+WIC

専有面積

76.12㎡

バルコニー面積

14.5㎡

備考

MB面積:0.66㎡

  • 可変式間仕切り
  • ウォークインクローゼット
  • 出入口が2か所以上あるキッチン
  • 南西向き
グランドパレス大分駅南タワー 間取り D type
タイプ

D type

間取り

3LDK+WIC

専有面積

71.4㎡

バルコニー面積

13.6㎡

備考

MB面積:0.66㎡

  • 可変式間仕切り
  • ウォークインクローゼット
  • 南西向き
グランドパレス大分駅南タワー 間取り E type
タイプ

E type

間取り

4LDK+2WIC

専有面積

87.15㎡

バルコニー面積

22.72㎡

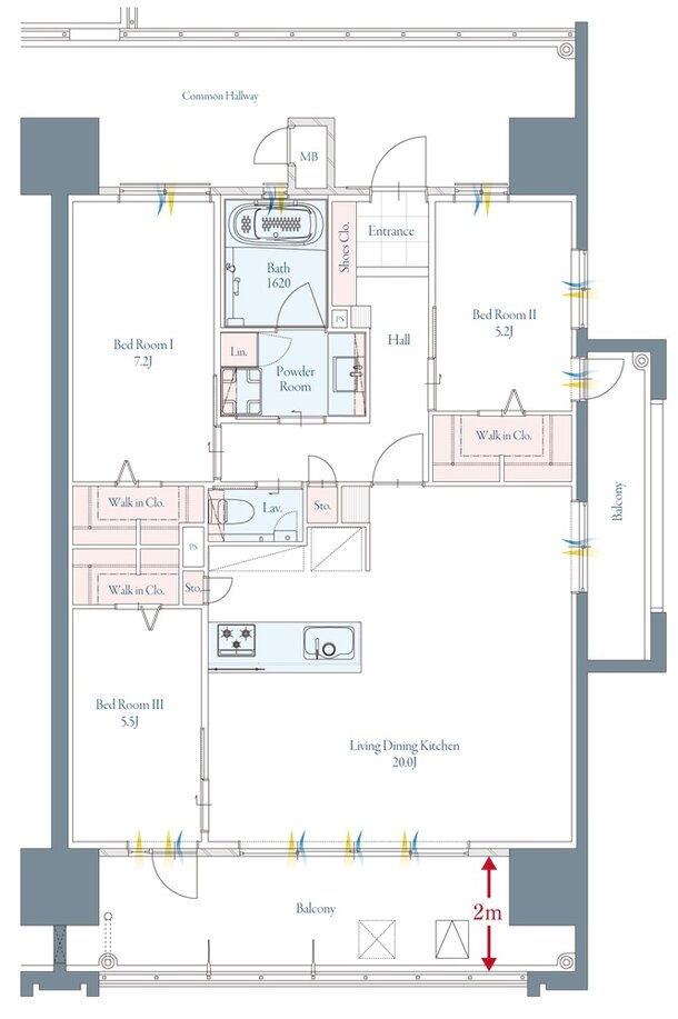
  • 可変式間仕切り
  • ウォークインクローゼット
  • 浴室に窓
  • 2面バルコニー
  • 南西向き
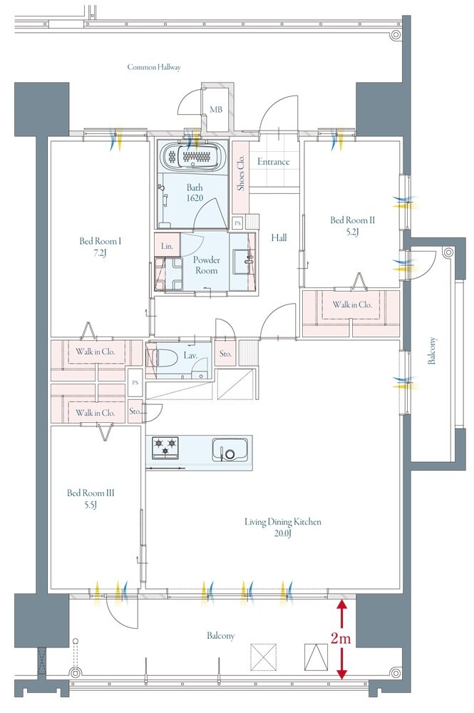
グランドパレス大分駅南タワー 間取り E TYPE(MENU PLAN1)
タイプ

E TYPE(MENU PLAN1)

間取り

3LDK+3WIC

専有面積

87.15㎡

バルコニー面積

22.72㎡

備考

MB面積:0.66㎡

  • ウォークインクローゼット
  • 出入口が2か所以上あるキッチン
  • 浴室に窓
  • 広いバルコニー
  • 2面バルコニー
  • 南西向き
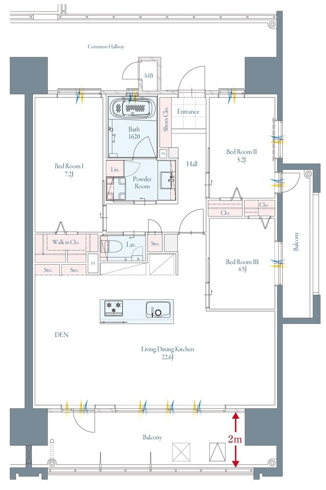
グランドパレス大分駅南タワー 間取り E TYPE(MENU PLAN2)
タイプ

E TYPE(MENU PLAN2)

間取り

3LDK+DEN+WIC

専有面積

87.15㎡

バルコニー面積

22.72㎡

備考

MB面積:0.66㎡

  • ウォークインクローゼット
  • 浴室に窓
  • 広いバルコニー
  • 2面バルコニー
  • 南西向き
グランドパレス大分駅南タワー 間取り H type
タイプ

H type

間取り

4LDK+4WIC+SIC+P

専有面積

140.70㎡

バルコニー面積

55.20㎡

備考

MB面積:0.66㎡

  • 可変式間仕切り
  • ウォークインクローゼット
  • シューズインクローゼット
  • 出入口が2か所以上あるキッチン
  • 浴室に窓
  • 広いバルコニー
  • 3面バルコニー
  • 南西向き

このページの一番上へ