- 価格
-
2990万円~5790万円
月々の支払い額を見る
- 専有面積
-
32.45㎡~58.93㎡
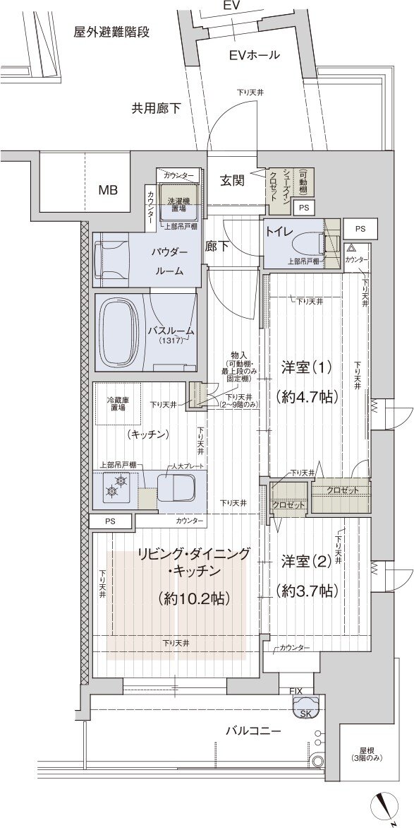
- 間取り
-
1LDK、2LDK、3LDK
間取りを見る(5件)
- 販売スケジュール
-
先着順申込受付中

