プレサンス ロジェ 銀山町 CENTIAの間取り一覧

お気に入りに
追加する
お気に入りに
追加済み

〜1LDK(1R・1K・1DK含む)掲載3

2LDK掲載1

3LDK掲載1

WIC…ウォークインクロゼット SIC…シューズインクロゼット S…サービスルーム(納戸)
※掲載の図面は設計図を基に描き起こしたもので、施工上の都合などにより多少変更になる場合があります。
※掲載の情報は2024年2月現在のものであり、 今後変更される場合があります。

プレサンス ロジェ 銀山町 CENTIA 間取り Aタイプmenu2
タイプ

Aタイプmenu2

間取り

1LDK+S(納戸)+SIC

専有面積

58.93㎡

バルコニー面積

7.51㎡

  • 可変式間仕切り
  • シューズインクローゼット
  • スロップシンク
  • 北向き
  • フラットフロア
プレサンス ロジェ 銀山町 CENTIA 間取り Bタイプ
タイプ

Bタイプ

間取り

1LDK+WIC

専有面積

36.64㎡

バルコニー面積

4.12㎡

備考

サービスバルコニー面積:1.10㎡

  • 可変式間仕切り
  • ウォークインクローゼット
  • 北向き
  • フラットフロア
プレサンス ロジェ 銀山町 CENTIA 間取り B’タイプ
タイプ

B’タイプ

間取り

1LDK+WIC

専有面積

36.64㎡

バルコニー面積

4.12㎡

備考

サービスバルコニー面積:1.10㎡

  • 可変式間仕切り
  • ウォークインクローゼット
  • 北向き
  • フラットフロア
プレサンス ロジェ 銀山町 CENTIA 間取り Dタイプ
タイプ

Dタイプ

間取り

2LDK+SIC

専有面積

44.70㎡

バルコニー面積

5.69㎡

  • 可変式間仕切り
  • シューズインクローゼット
  • スロップシンク
  • 北向き
  • フラットフロア
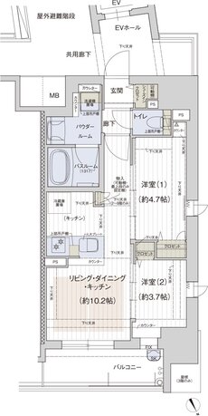
プレサンス ロジェ 銀山町 CENTIA 間取り Aタイプ
タイプ

Aタイプ

間取り

3LDK+WIC+SIC

専有面積

58.93㎡

バルコニー面積

7.51㎡

備考

サービスバルコニー面積:2.60㎡

  • 可変式間仕切り
  • ウォークインクローゼット
  • シューズインクローゼット
  • スロップシンク
  • 北向き
  • フラットフロア

このページの一番上へ