アトラス文京安藤坂 間取り 70Aタイプ
タイプ

70Aタイプ

間取り

3LDK+WIC+SIC

専有面積

70.29㎡

バルコニー面積

6.71㎡

備考

サービスバルコニー面積:3.82㎡

  • 玄関からリビングが見えない間取り
  • ウォークインクローゼット
  • シューズインクローゼット
  • 2面バルコニー
  • トランクルーム
  • 西向き
アトラス文京安藤坂 間取り 70Eタイプ
タイプ

70Eタイプ

間取り

3LDK+2WIC+SIC

専有面積

73.43㎡

バルコニー面積

15.1㎡

  • ウォークインクローゼット
  • シューズインクローゼット
  • 出入口が2か所以上あるキッチン
  • トランクルーム
  • 南西向き
アトラス文京安藤坂 間取り 80Bタイプ
タイプ

80Bタイプ

間取り

3LDK+2WIC+SIC

専有面積

83.95㎡

バルコニー面積

5.61㎡

備考

サービスバルコニー面積:7.42㎡
(3F~5F)

  • ウォークインクローゼット
  • シューズインクローゼット
  • トランクルーム
  • 南西向き
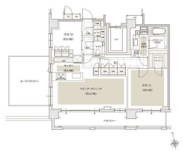
アトラス文京安藤坂 間取り 80DSタイプ【プレミアム住戸】
タイプ

80DSタイプ【プレミアム住戸】

間取り

2LDK+WIC+SIC

専有面積

82.37㎡

バルコニー面積

16.52㎡

備考

ルーフバルコニー面積:17.17㎡

  • ウォークインクローゼット
  • シューズインクローゼット
  • 2面バルコニー
  • ルーフバルコニー
  • トランクルーム
  • 南向き
アトラス文京安藤坂 間取り 80ESタイプ【プレミアム住戸】
タイプ

80ESタイプ【プレミアム住戸】

間取り

3LDK+WIC+SIC

専有面積

83.96㎡

バルコニー面積

18.22㎡

  • 玄関からリビングが見えない間取り
  • ウォークインクローゼット
  • シューズインクローゼット
  • 2面バルコニー
  • トランクルーム
  • 南向き
アトラス文京安藤坂 間取り 90ASタイプ【プレミアム住戸】
タイプ

90ASタイプ【プレミアム住戸】

間取り

3LDK+2WIC+STC+N

専有面積

90.92㎡

バルコニー面積

20.16㎡

備考

ルーフバルコニー面積:14.58㎡

  • 玄関からリビングが見えない間取り
  • ウォークインクローゼット
  • シューズインクローゼット
  • 3面バルコニー
  • ルーフバルコニー
  • トランクルーム
  • 東向き

このページの一番上へ