- 価格
-
価格未定(予定)
- 専有面積
-
58.10㎡~83.95㎡
- 間取り
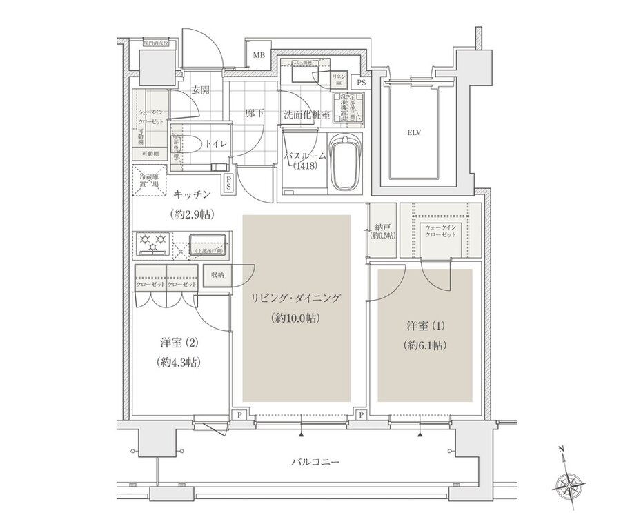
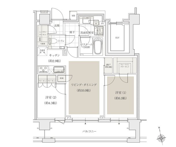
-
2LDK~3LDK
間取りを見る(7件)
- 販売スケジュール
-
2025年12月上旬 販売開始予定

