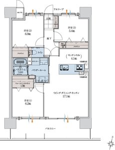
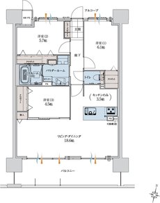
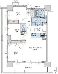
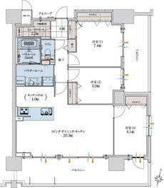
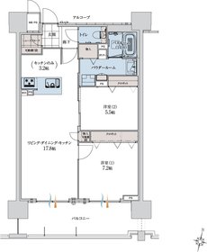
間取り
この物件の詳細情報に戻る2LDK掲載2件
※掲載の完成予想図は設計段階の図面を基に描き起こしたもので形状・色調・植栽計画等は異なる場合がございます。
関連する他の物件も見てみる
特徴
- I型キッチン(18)
- 対面キッチン(18)
- ウォークインクローゼット(17)
- 子どもと暮らす(17)
- 複層ガラス(ペアガラス)(16)
- モデルルーム公開中(16)
- 浴室暖房換気乾燥機(15)
- 食器洗い乾燥機(食洗機)(15)
- 一人暮らし・二人暮らし向け(15)
- 南向き(12)
- 二重床/二重天井(12)
- ペット可(11)
- 防災設備(11)
- 駅近(駅徒歩5分以内・駅直結)(9)
- エコマンション(9)
- ハンズフリーキー(9)
- ZEHマンション(9)
- 2面バルコニー(8)
- アルコーブ(6)
- 耐震・免震・制振(5)
- フラット35(4)
- L字バルコニー(4)
- バリアフリー(3)
- ディスポーザー(2)
- タワーマンション・高層マンション(1)
- 大規模マンション(1)
地域
間取り
価格帯
不動産会社
駅
沿線

