- 価格
-
3900万円~9200万円
月々の支払い額を見る
- 専有面積
-
53.94㎡~100.71㎡
- 間取り
-
1LDK、2LDK、3LDK
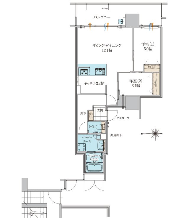
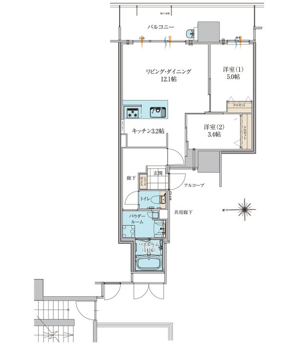
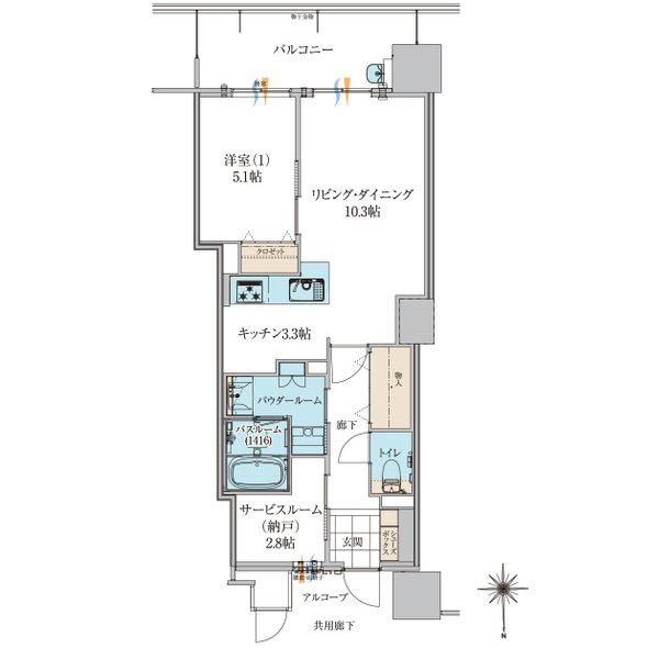
間取りを見る(13件)
- 販売スケジュール
-
先着順受付中 ※先着順につき、ご希望の住戸が売約済みの場合がございます。あらかじめご了承ください。

