- 価格
-
4690万円~8490万円
月々の支払い額を見る
- 専有面積
-
56.08㎡~87.68㎡
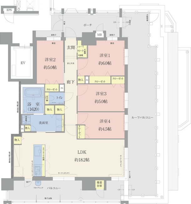
- 間取り
-
2LDK、3LDK、4LDK
間取りを見る(7件)
- 販売スケジュール
-
先着順申込受付中

