間取り
この物件の詳細情報に戻る2LDK掲載3件
3LDK掲載4件
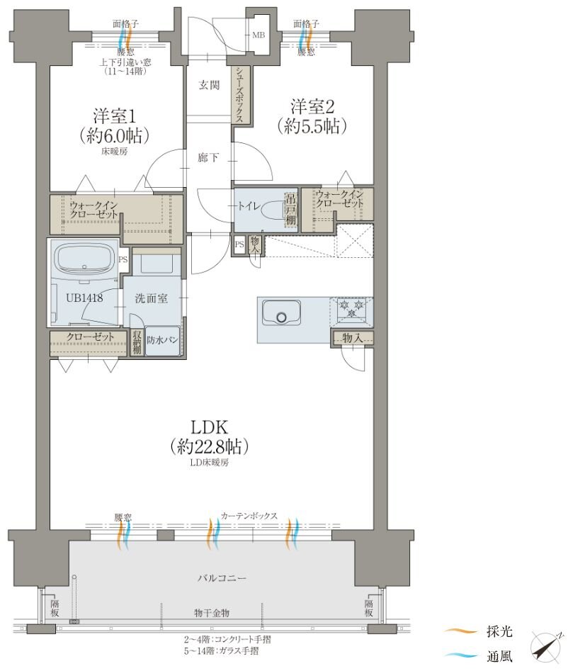
■WIC=ウォークインクローゼット ■SC=シューズクローク
※階数によってバルコニーの形状が一部異なります。
※掲載の図面は設計段階の図面を基に描き起こしたもので、実際とは多少異なる場合があります。
※設計は、若干の変更が生じる場合がありますので、予めご了承ください。
※図面上で表現している床暖房の範囲は、実際の施工範囲とは多少異なる場合があります。
関連する他の物件も見てみる
特徴
- 子どもと暮らす(18)
- 対面キッチン(17)
- I型キッチン(17)
- ウォークインクローゼット(16)
- 浴室暖房換気乾燥機(14)
- 一人暮らし・二人暮らし向け(14)
- 平置き駐車場(13)
- 食器洗い乾燥機(食洗機)(13)
- 可変式間仕切り(12)
- 駐車場100%以上(12)
- 複層ガラス(ペアガラス)(11)
- モデルルーム公開中(11)
- 浴室に窓(10)
- 駅近(駅徒歩5分以内・駅直結)(10)
- 出入口が2か所以上あるキッチン(10)
- ハンズフリーキー(10)
- ZEHマンション(9)
- 2面バルコニー(8)
- エコマンション(8)
- ラウンジ(7)
- 複数沿線利用可能(6)
- 南東向き(6)
- ペット可(6)
- 二重床/二重天井(5)
- 電気自動車対応(5)
- L字バルコニー(3)
- ゴミ回収サービス(3)
- 床暖房(2)
- 和室付き(2)
- 一括受電サービス(2)
- バリアフリー(1)
地域
間取り
価格帯
不動産会社
駅
沿線

