- 価格
-
3398万円~5598万円
月々の支払い額を見る
- 専有面積
-
68.42㎡~96.07㎡
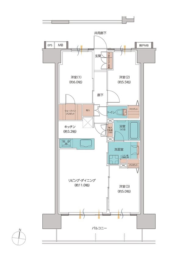
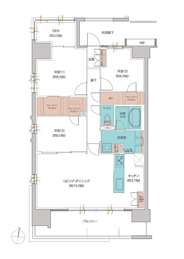
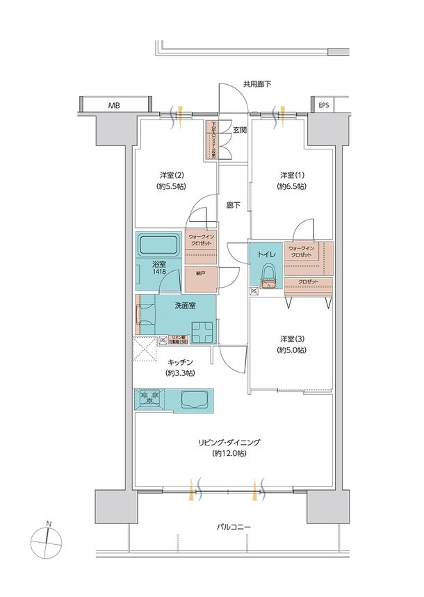
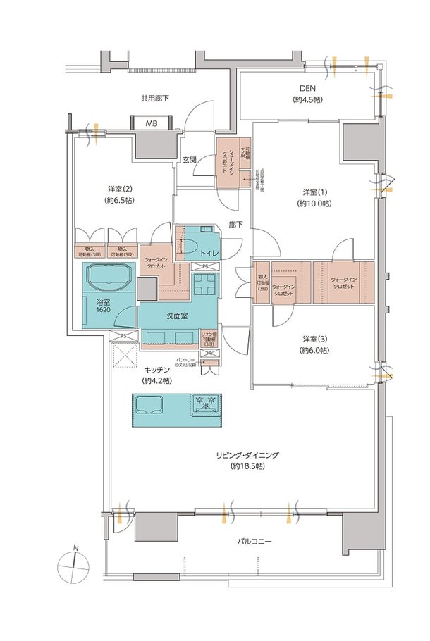
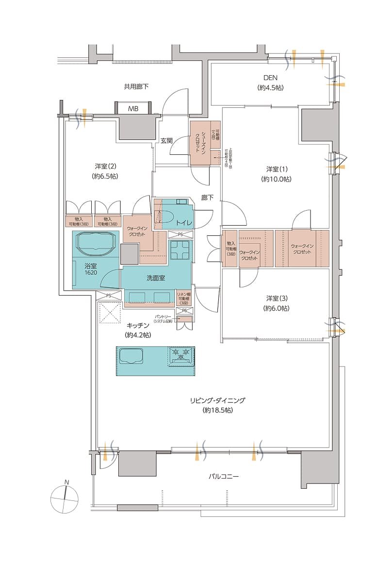
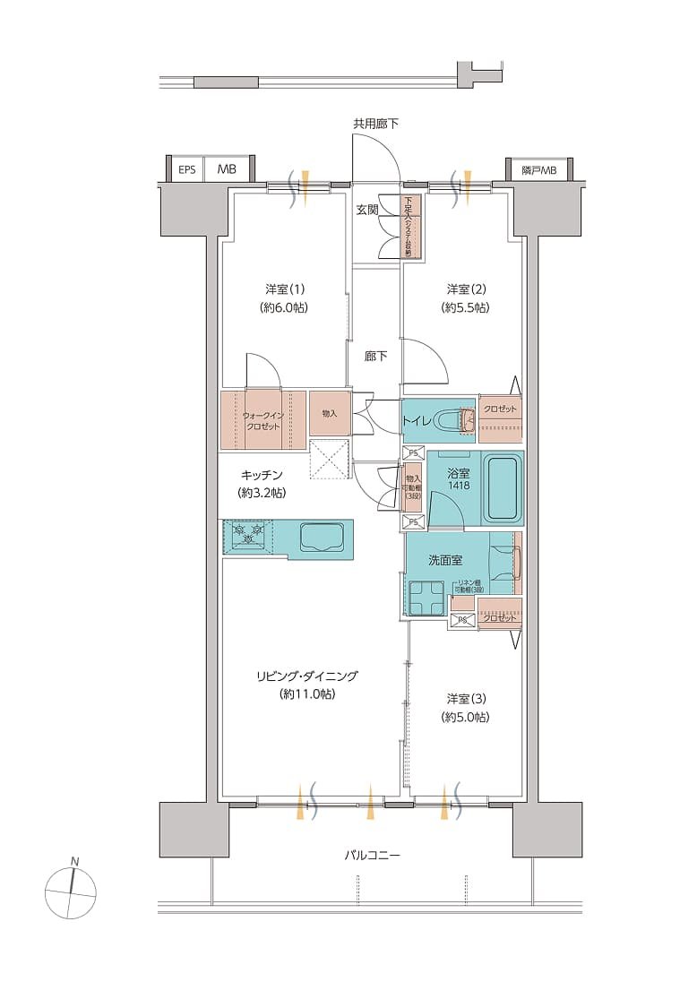
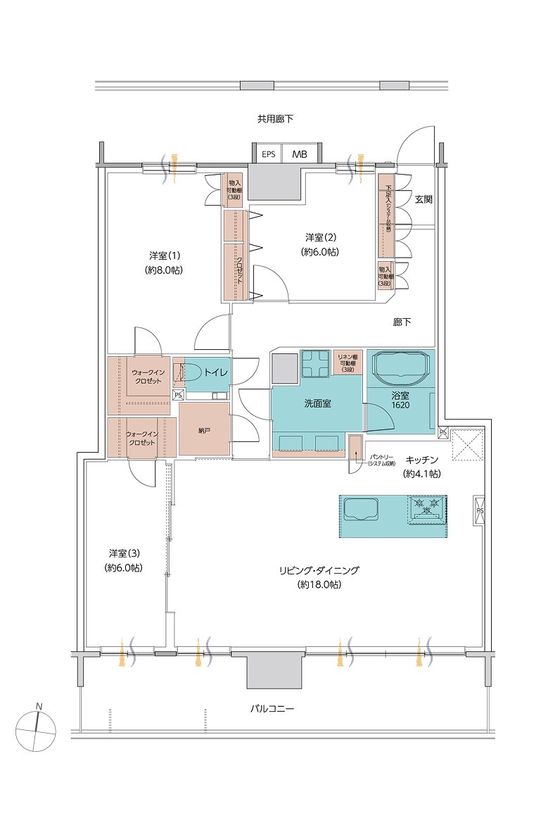
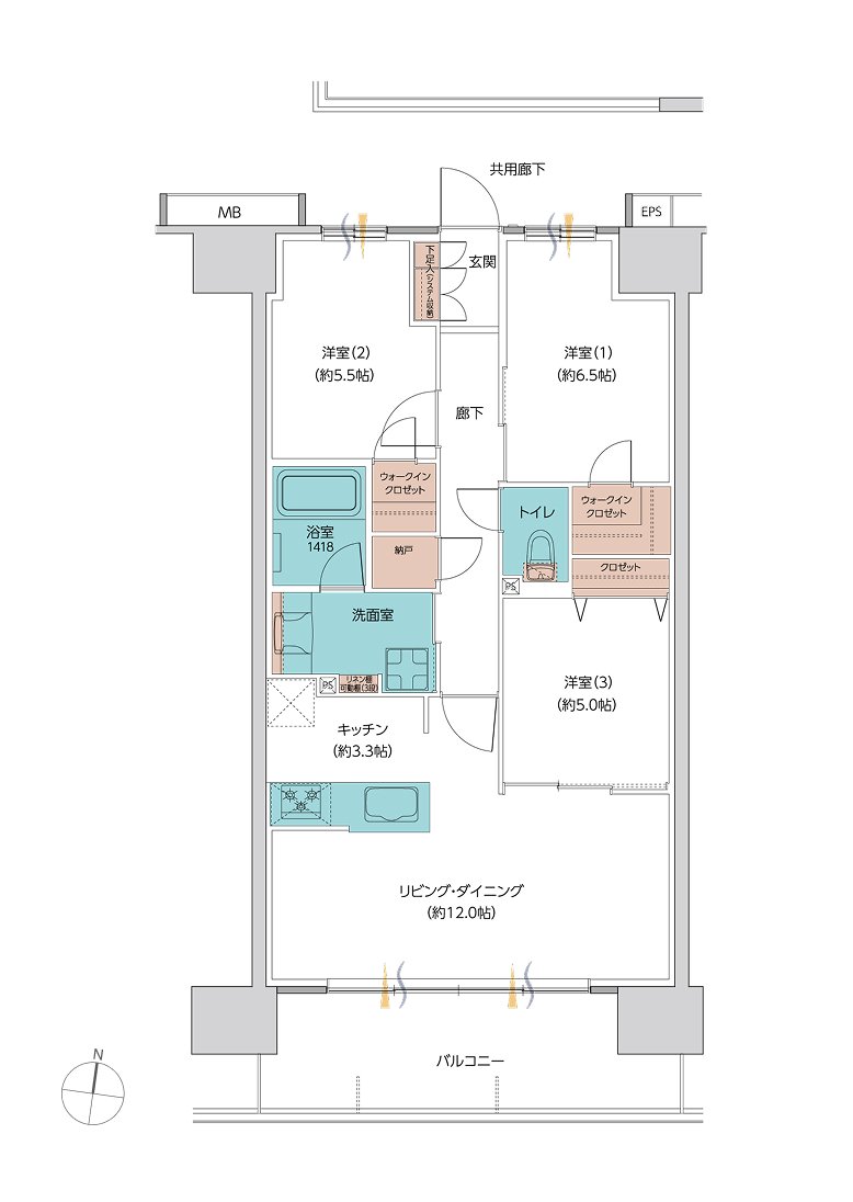
- 間取り
-
3LDK
間取りを見る(9件)
- 販売スケジュール
-
先着順申込受付中 先着順申込受付場所:レーベン松山レジデンスサロン

