- 価格
-
2090万円~1億円
月々の支払い額を見る
- 専有面積
-
41.50㎡~122.74㎡
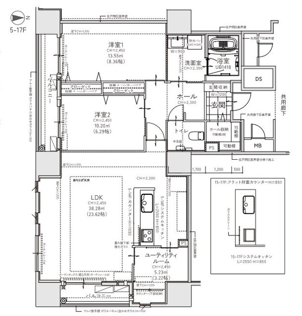
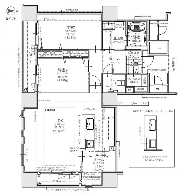
- 間取り
-
LDK+UR、1LDK、2LDK、2LDK+UR、2LDK+UR+SR、3LDK、3LDK+SR
間取りを見る(5件)
- 販売スケジュール
-
先着順申込受付中

