- 価格
-
4739万円~8469万円
月々の支払い額を見る
- 専有面積
-
69.47㎡~101.67㎡
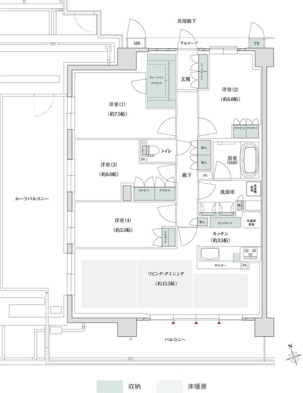
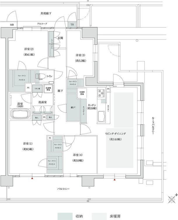
- 間取り
-
3LDK、4LDK
間取りを見る(7件)
- 販売スケジュール
-
先着順申込受付中

