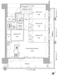
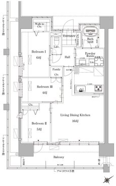
間取り
この物件の詳細情報に戻る2LDK掲載2件
3LDK掲載3件
※掲載の図面は計画段階(2025年2月27日現在)のものであり、行政指導及び施工上の都合などにより、改良・変更となる場合がございます。予めご了承ください。
関連する他の物件も見てみる
特徴
- 子どもと暮らす(107)
- 対面キッチン(100)
- I型キッチン(100)
- ウォークインクローゼット(89)
- モデルルーム公開中(74)
- 浴室暖房換気乾燥機(71)
- 二重床/二重天井(70)
- ペット可(67)
- 可変式間仕切り(66)
- 一人暮らし・二人暮らし向け(65)
- 宅配ボックス(64)
- 玄関からリビングが見えない間取り(59)
- 出入口が2か所以上あるキッチン(52)
- エコマンション(51)
- 複層ガラス(ペアガラス)(51)
- シューズインクローゼット(43)
- ZEHマンション(43)
- 駅近(駅徒歩5分以内・駅直結)(43)
- ペット共用施設(40)
- 一括受電サービス(34)
- 南東向き(29)
- IoTマンション(27)
- カーシェア(7)
- 内廊下(7)
地域
間取り
価格帯
不動産会社
駅
沿線

