- 価格
-
2900万円~4060万円
月々の支払い額を見る
- 専有面積
-
65.97㎡~84.97㎡
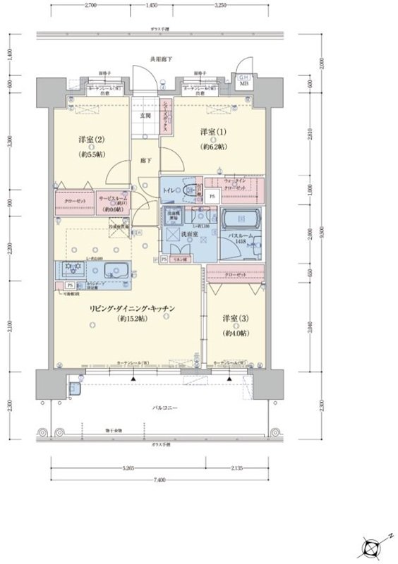
- 間取り
-
2LDK~4LDK
間取りを見る(7件)
- 販売スケジュール
-
2025年10月18日(土)より先着順申込受付開始

