- 価格
-
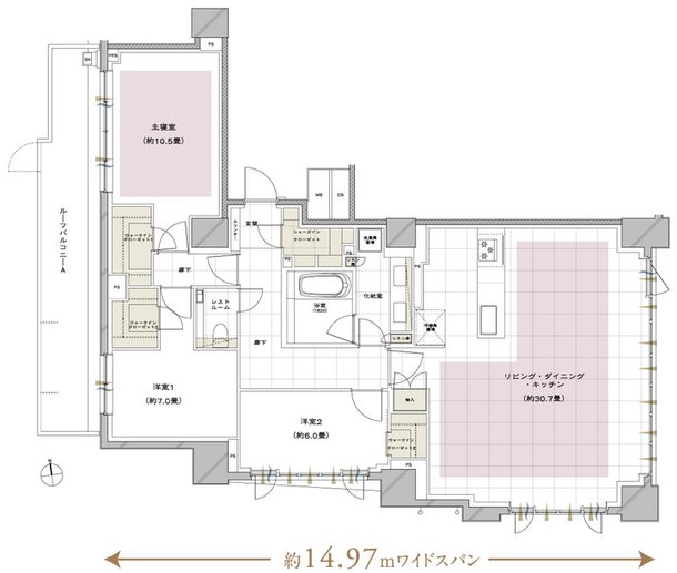
2億5800万円~3億4900万円
月々の支払い額を見る
- 専有面積
-
114.52㎡~131.13㎡
- 間取り
-
3LDK
間取りを見る(3件)
- 販売スケジュール
-
〇先着順申込み受付中

