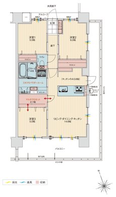
間取り
この物件の詳細情報に戻る2LDK掲載4件
3LDK掲載6件
※行政官庁の指導または施工上の都合により、設計・設備・仕様・色調等の変更がある場合がございます。予めご了承ください。
関連する他の物件も見てみる
特徴
- I型キッチン(15)
- 対面キッチン(15)
- 子どもと暮らす(14)
- 平置き駐車場(14)
- ウォークインクローゼット(12)
- 駐車場100%以上(11)
- ハンズフリーキー(10)
- 一人暮らし・二人暮らし向け(9)
- ペット可(8)
- 2面バルコニー(7)
- 南西向き(6)
- 南向き(6)
- 二重床/二重天井(6)
- モデルルーム公開中(5)
- アルコーブ(5)
- 食器洗い乾燥機(食洗機)(5)
- 丘の上・高台(4)
- 出入口が2か所以上あるキッチン(4)
- 防災設備(4)
- L字バルコニー(4)
- ZEHマンション(4)
- バリアフリー(3)
- 広いバルコニー(3)
- 広いリビング(3)
- スロップシンク(1)
- 第一種低層住居専用地域(1)
- 省エネ対応(1)
地域
間取り
価格帯
不動産会社

