- 価格
-
5318万円~6258万円
月々の支払い額を見る
- 専有面積
-
65.52㎡~70㎡
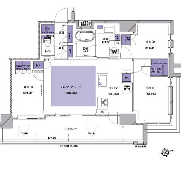
- 間取り
-
3LDK
間取りを見る(13件)
- 販売スケジュール
-
先着順申込み受付中

