- 価格
-
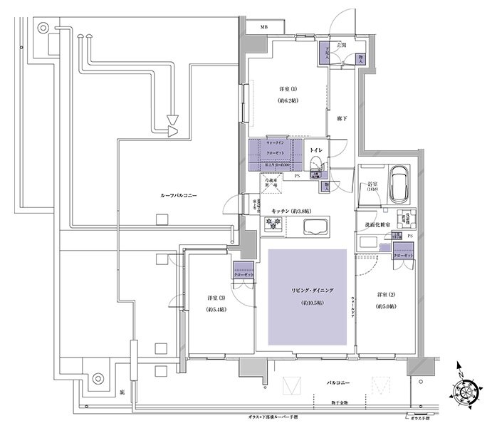
5318万円~6608万円
月々の支払い額を見る
- 専有面積
-
65.52㎡~70.00㎡
- 間取り
-
3LDK
間取りを見る(18件)
- 販売スケジュール
-
第1期(1次・6次・7次・10次・13次・14次・15次・17次)先着順申込受付中

