- 価格
-
5298万円~9398万円
月々の支払い額を見る
- 専有面積
-
48.87㎡~85.89㎡
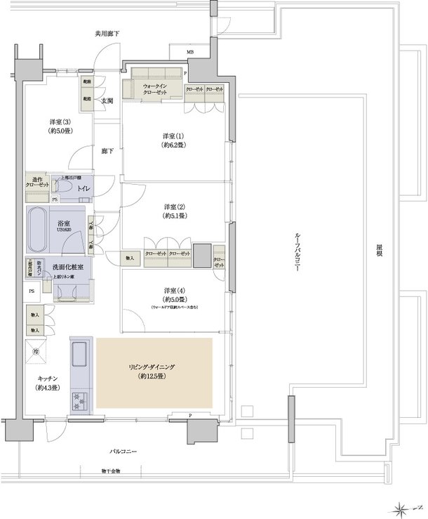
- 間取り
-
2LDK ~ 4LDK
間取りを見る(12件)
- 販売スケジュール
-
先着順販売中

