- 価格
-
5400万円台~9500万円台(100万円単位)(予定)
月々の支払い額を見る
- 専有面積
-
60.50㎡~88.60㎡
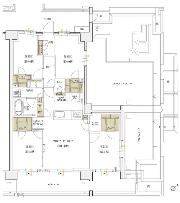
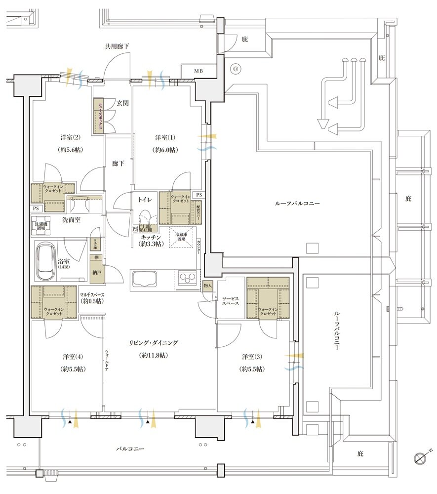
- 間取り
-
2LDK~4LDK
間取りを見る(10件)
- 販売スケジュール
-
2026年1月中旬 販売開始予定

