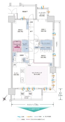
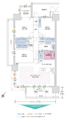
間取り
この物件の詳細情報に戻る〜1LDK(1R・1K・1DK含む)掲載2件
2LDK掲載6件
3LDK掲載10件
※掲載の図面は計画段階のもので変更が生じる場合がございます。
※バルコニーの奥行は、壁の中心から手すり壁の中心までの寸法であり、実際に使用できる寸法とは異なります。
※無償オプションには期限がございます。詳しくは係員にお尋ねください。
関連する他の物件も見てみる
特徴
- 浴室暖房換気乾燥機(4)
- 食器洗い乾燥機(食洗機)(4)
- I型キッチン(4)
- エコマンション(4)
- 子どもと暮らす(4)
- モデルルーム公開中(4)
- 駐車場100%以上(4)
- 対面キッチン(4)
- 広いリビング(4)
- ウォークインクローゼット(4)
- 宅配ボックス(3)
- 南東向き(3)
- 玄関からリビングが見えない間取り(3)
- 一人暮らし・二人暮らし向け(3)
- 可変式間仕切り(3)
- 複数沿線利用可能(3)
- 24時間ゴミ出し可能(3)
- 全戸南向き(3)
- 複層ガラス(ペアガラス)(3)
- 出入口が2か所以上あるキッチン(2)
- シューズインクローゼット(2)
- ラウンジ(2)
- 駅近(駅徒歩5分以内・駅直結)(2)
- ZEHマンション(2)
- アウトフレーム工法(2)
- アイランドキッチン(2)
- 南東向き中心(2)
- 2面バルコニー(2)
- 床暖房(2)
- 中庭(パティオ)(1)
- オープンキッチン(1)
- 広いバルコニー(1)
- 高級マンション・ハイグレードマンション(1)
- フラット35(1)
- 一括受電サービス(1)
- オンラインで相談・見学・商談可能(1)
地域
間取り
価格帯
不動産会社
駅
沿線

