間取り
この物件の詳細情報に戻る2LDK掲載7件
3LDK掲載8件
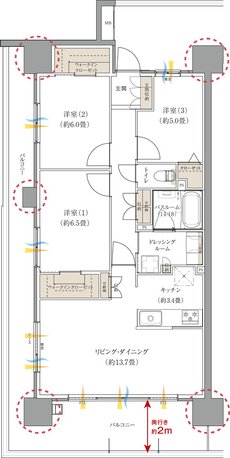
WIC:ウォークインクローゼット
※掲載の間取り図面・設備仕様は開発段階のもので、設計・施工上の都合により変更する場合があります。
※方位記号は若干誤差があります。正確な方位については設計図書でご確認ください。
関連する他の物件も見てみる
特徴
- 子どもと暮らす(38)
- 対面キッチン(37)
- ウォークインクローゼット(36)
- I型キッチン(36)
- スロップシンク(33)
- モデルルーム公開中(32)
- 浴室暖房換気乾燥機(30)
- 一人暮らし・二人暮らし向け(30)
- 食器洗い乾燥機(食洗機)(29)
- 複層ガラス(ペアガラス)(27)
- 平置き駐車場(27)
- 2面バルコニー(23)
- 出入口が2か所以上あるキッチン(23)
- 浴室に窓(22)
- 広いバルコニー(22)
- 駐車場100%以上(21)
- 南向き(18)
- 可変式間仕切り(17)
- 複数沿線利用可能(13)
- シューズインクローゼット(13)
- L字バルコニー(12)
- 二重床/二重天井(10)
- ZEHマンション(10)
- アウトフレーム工法(10)
- ラウンジ(9)
- 広いリビング(8)
- 電気自動車対応(7)
- 大規模マンション(7)
- 西向き(3)
- 和室付き(2)
地域
間取り
価格帯
不動産会社
駅
沿線

