- 価格
-
3658万円~5958万円
月々の支払い額を見る
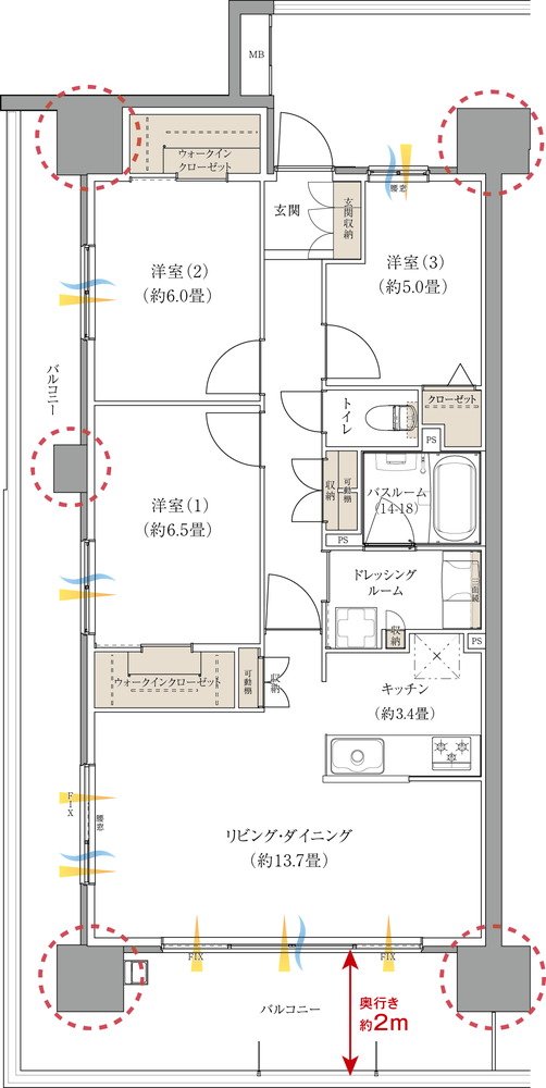
- 専有面積
-
64.64㎡~87.42㎡
- 間取り
-
2LDK~4LDK
間取りを見る(14件)
- 販売スケジュール
-
先着順申込み受付中 受付場所/「ザ・マークスコート福山」マンションギャラリー

