- 価格
-
4779万円~6309万円
月々の支払い額を見る
- 専有面積
-
62.10㎡~82.94㎡
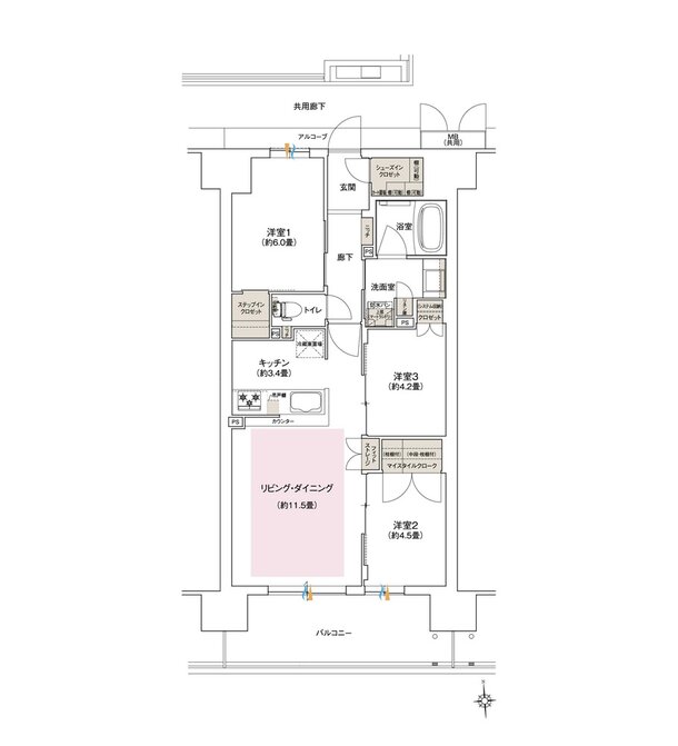
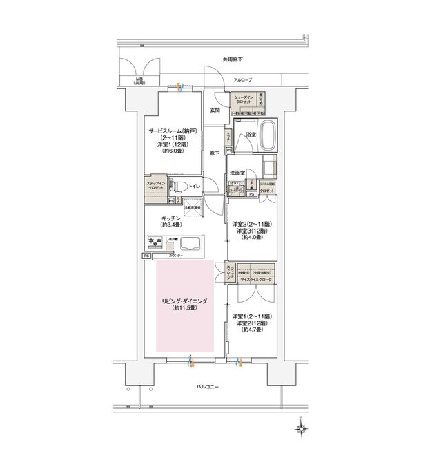
- 間取り
-
2LDK~4LDK
間取りを見る(2件)
- 販売スケジュール
-
先着順申込み受付中

