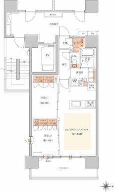
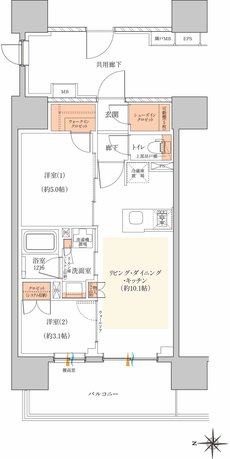
間取り
この物件の詳細情報に戻る〜1LDK(1R・1K・1DK含む)掲載2件
WIC:ウォークインクロゼット SIC:シューズインクロゼット
※掲載の間取図は計画段階の図面を基に描き起こしたものであり、今後変更になる可能性があります。
※代表の間取りを掲載しています。バルコニー・マリオン形状等は階数により異なる場合があります。
関連する他の物件も見てみる
特徴
- 子どもと暮らす(65)
- ウォークインクローゼット(61)
- 対面キッチン(61)
- 可変式間仕切り(58)
- I型キッチン(57)
- 一人暮らし・二人暮らし向け(51)
- モデルルーム公開中(49)
- 床暖房(47)
- 平置き駐車場(47)
- 宅配ボックス(45)
- 複層ガラス(ペアガラス)(43)
- 浴室暖房換気乾燥機(42)
- 販売前・販売予定(39)
- ペット可(37)
- ハンズフリーキー(36)
- シューズインクローゼット(34)
- エコマンション(32)
- 東向き(25)
- 二重床/二重天井(21)
- ラウンジ(18)
- 西向き(17)
- バリアフリー(11)
- 内廊下(4)
地域
間取り
価格帯
不動産会社
駅
沿線

