- 価格
-
3598万円~5898万円
月々の支払い額を見る
- 専有面積
-
62.98㎡~84.60㎡
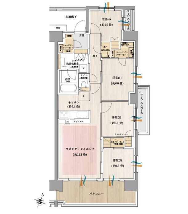
- 間取り
-
2LDK ~ 4LDK
間取りを見る(10件)
- 販売スケジュール
-
先着順販売中

