- 価格
-
2億960万円、2億9480万円
月々の支払い額を見る
- 専有面積
-
101.68㎡、122.00㎡
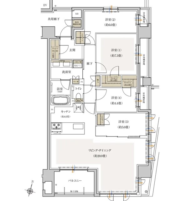
- 間取り
-
3LDK・4LDK
間取りを見る(2件)
- 販売スケジュール
-
先着順申込み受付中

