- 価格
-
4140万円~4690万円
月々の支払い額を見る
- 専有面積
-
62.70㎡~71.50㎡
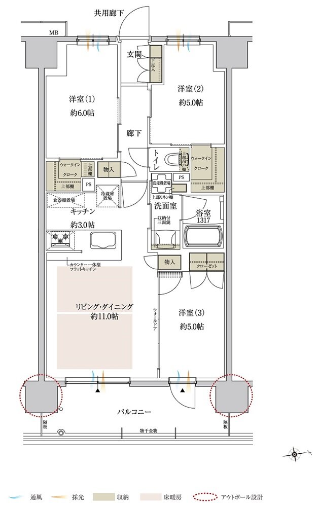
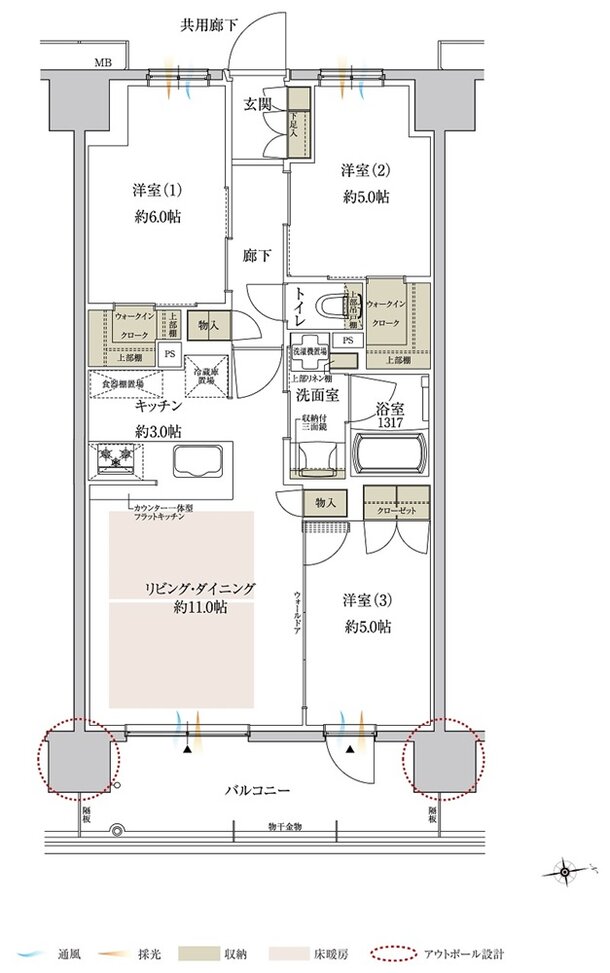
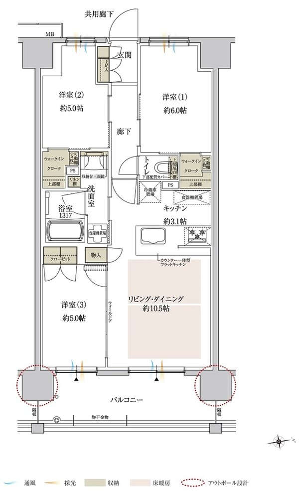
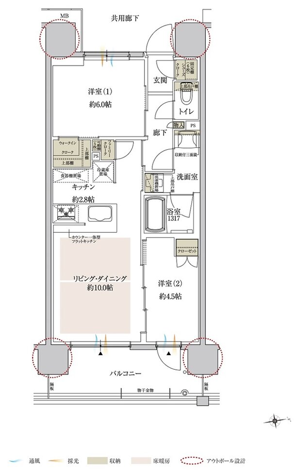
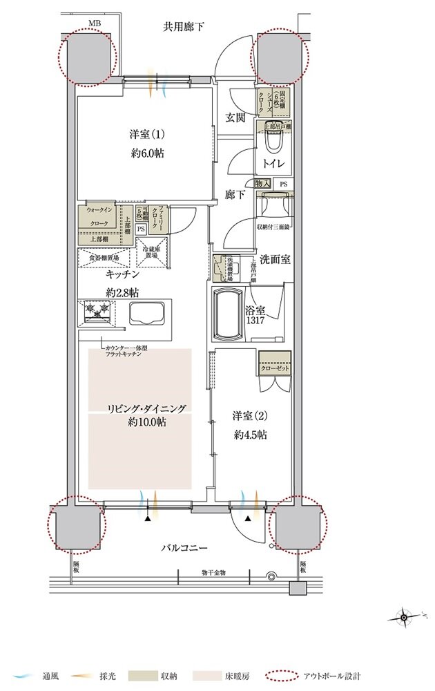
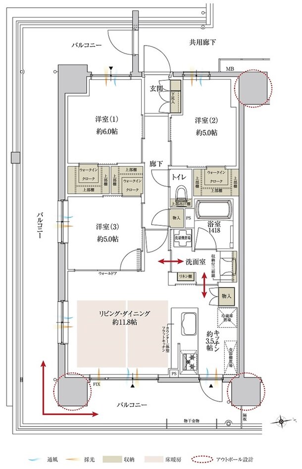
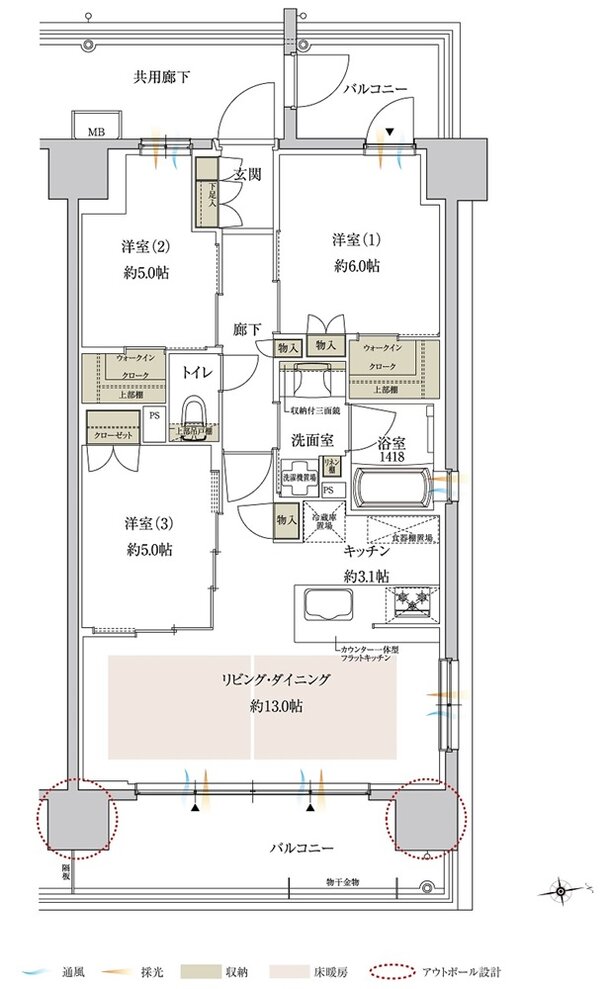
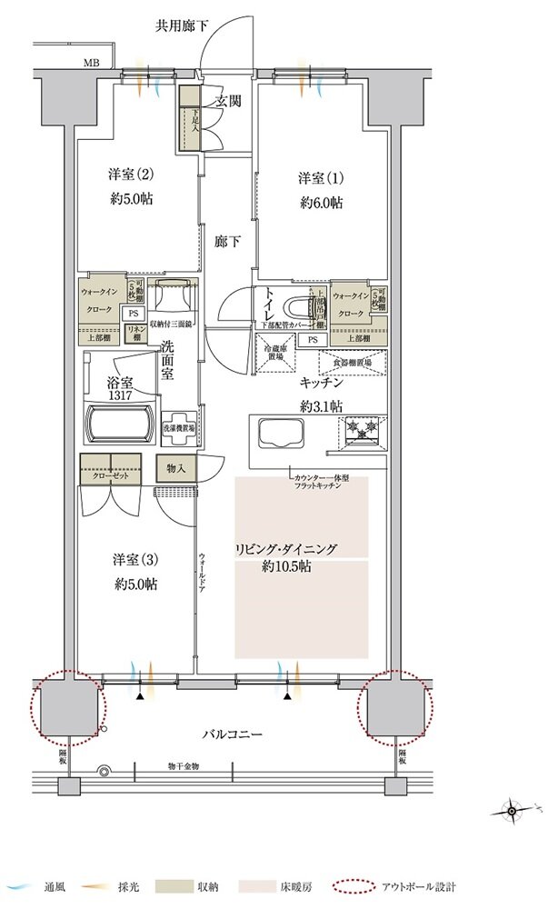
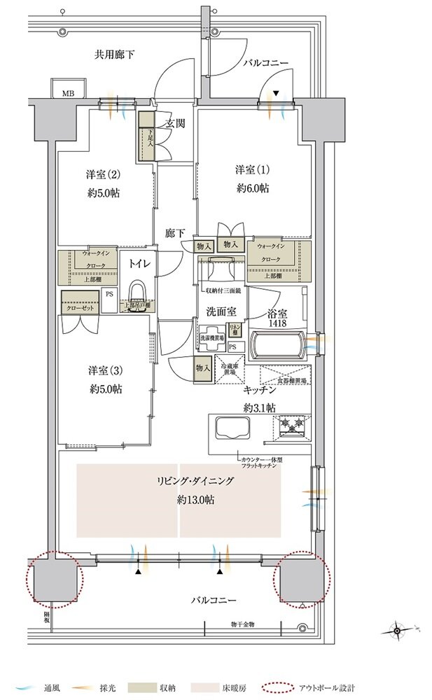
- 間取り
-
3LDK
間取りを見る(7件)
- 販売スケジュール
-
先着順申込受付中

