- 価格
-
1億2900万円台~3億1900万円台(100万円単位)(予定)
月々の支払い額を見る
- 専有面積
-
61.52㎡~90.44㎡
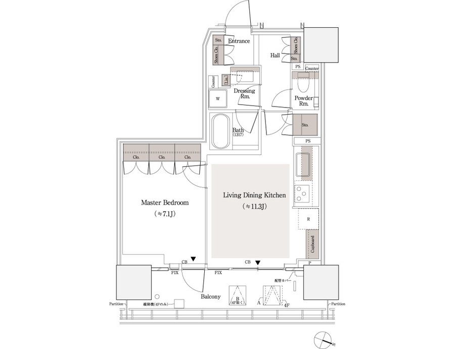
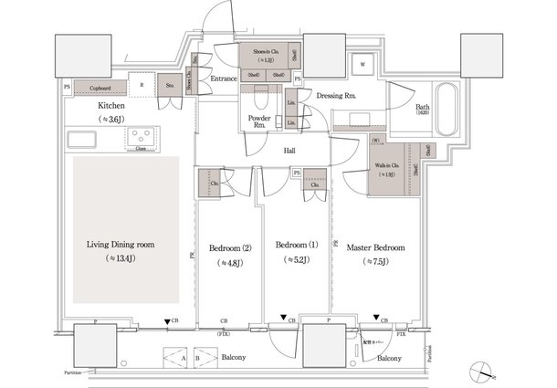
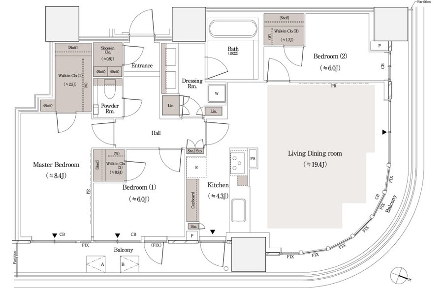
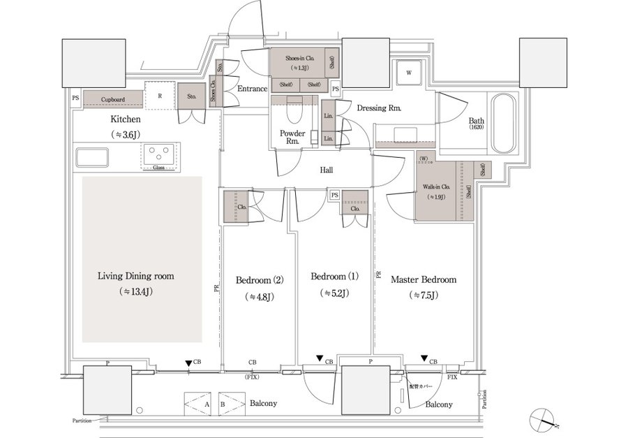
- 間取り
-
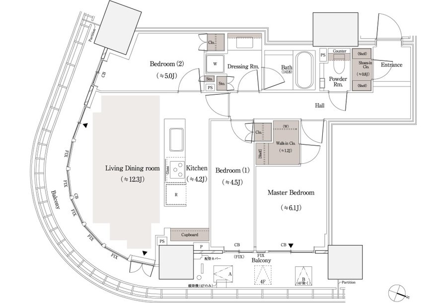
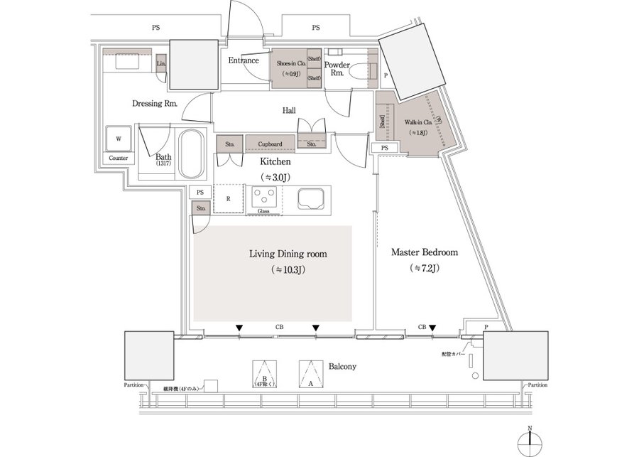
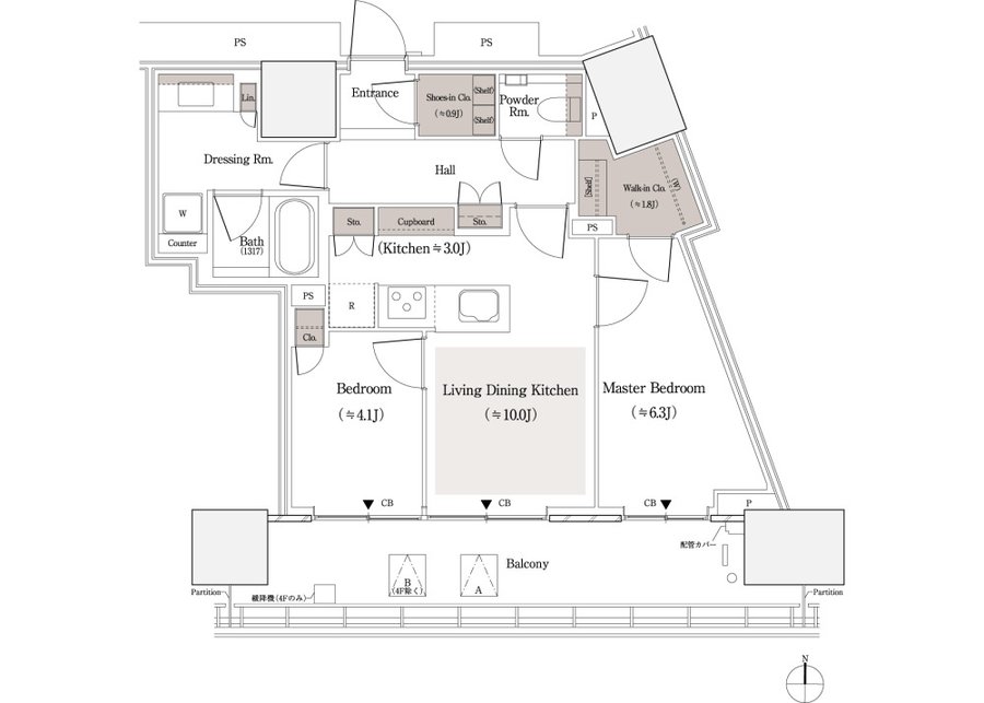
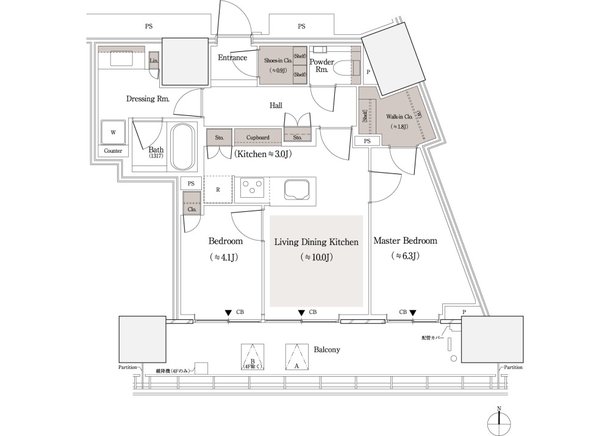
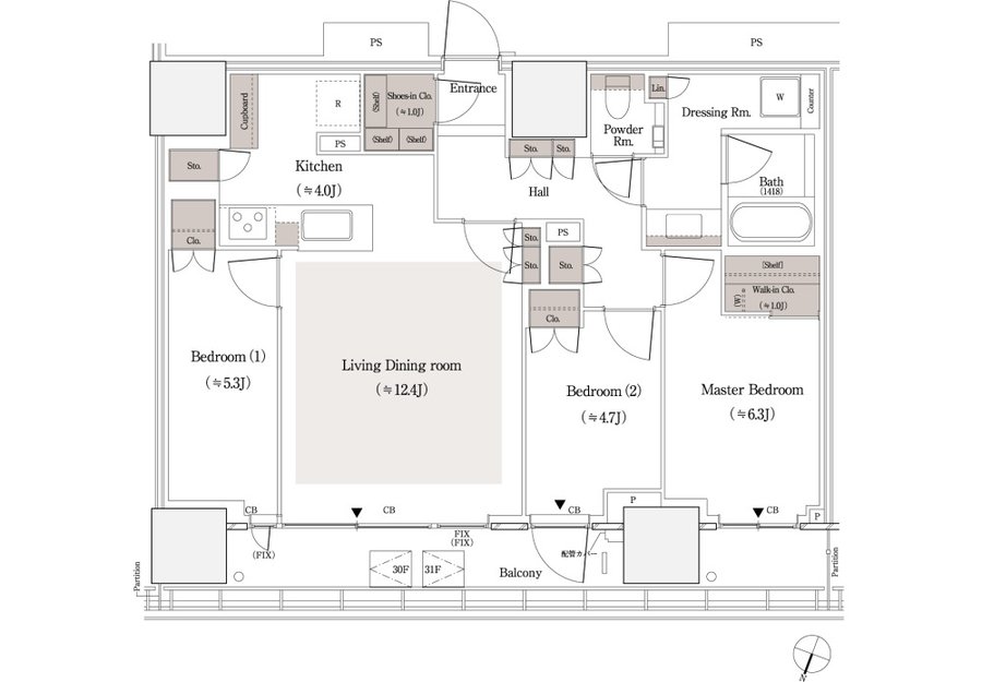
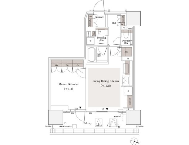
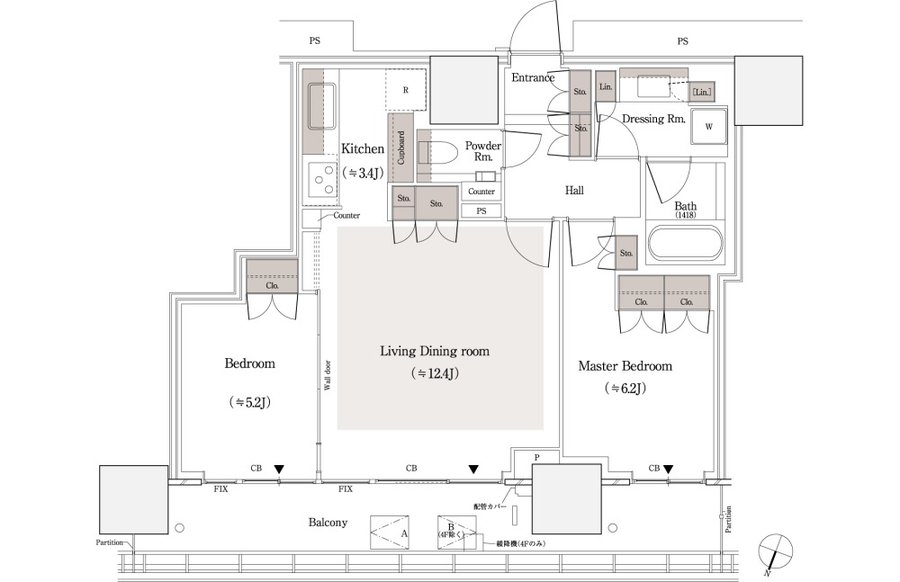
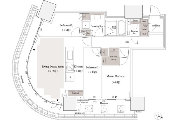
2LDK~3LDK
間取りを見る(10件)
- 販売スケジュール
-
2026年5月中旬販売予定

