- 価格
-
2800万円台~3900万円台(100万円単位)(予定)
月々の支払い額を見る
- 専有面積
-
45.15㎡、66.65㎡
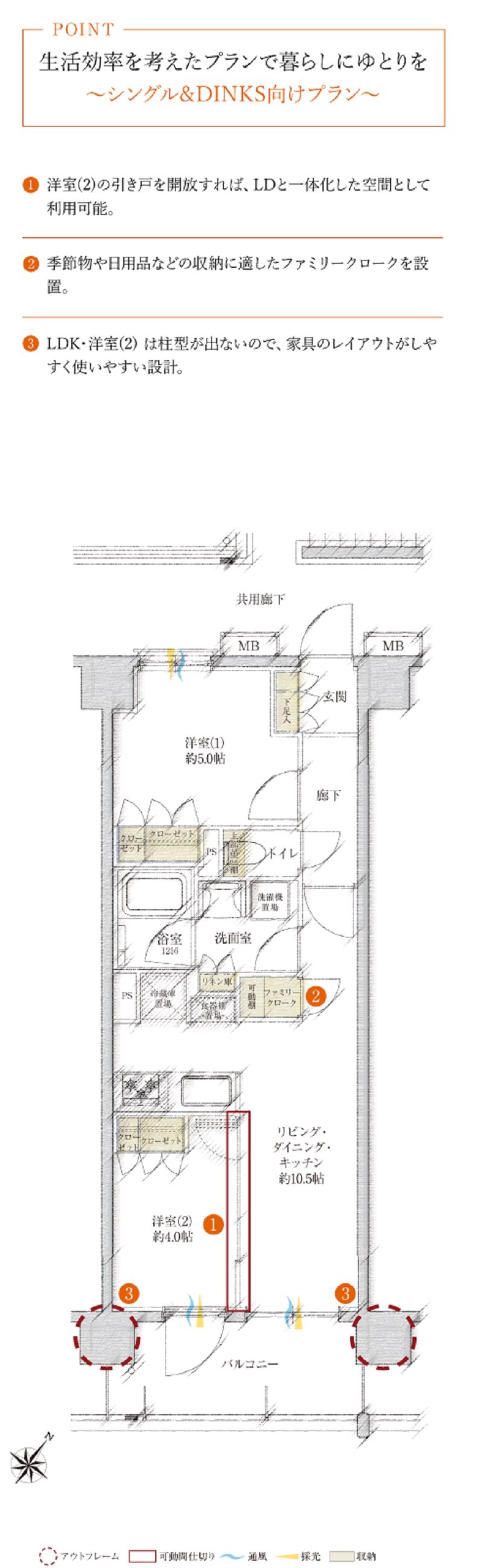
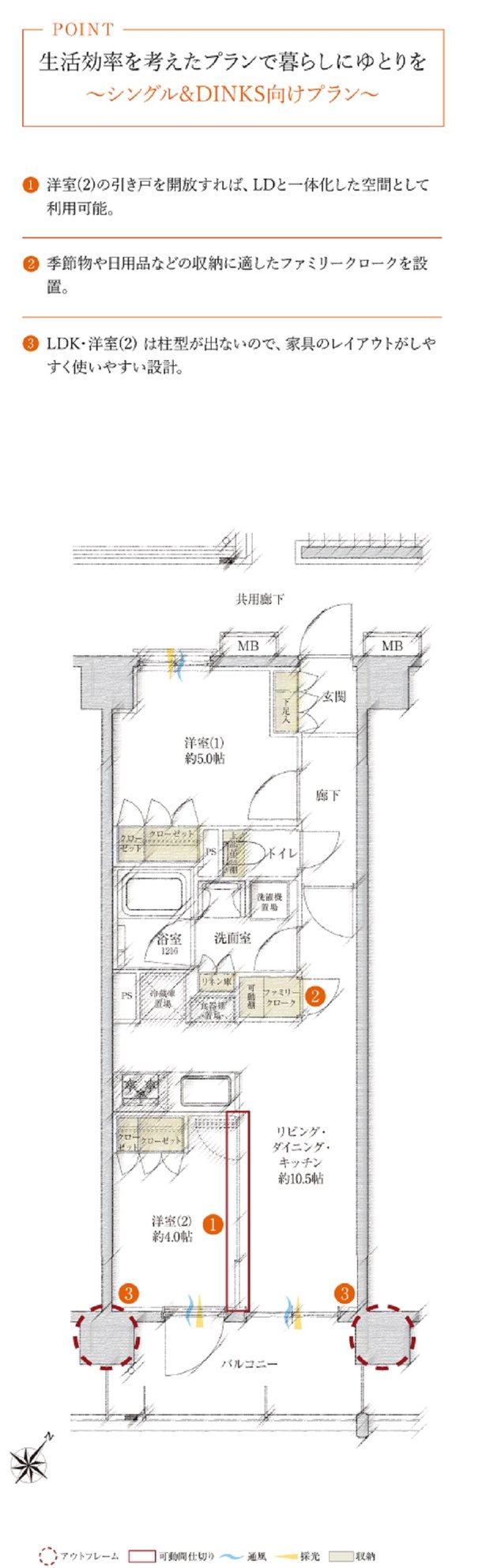
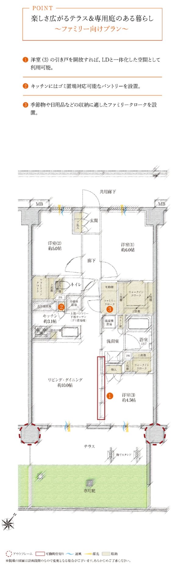
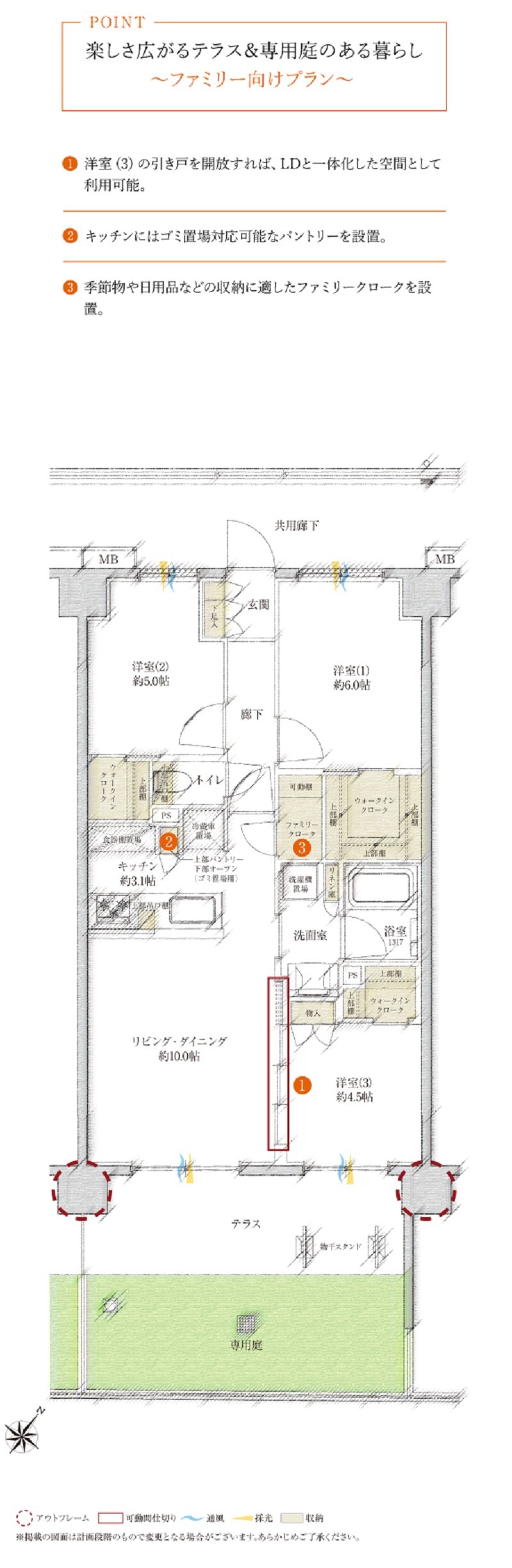
- 間取り
-
2LDK・3LDK
間取りを見る(4件)
- 販売スケジュール
-
西暦2026年3月下旬販売開始予定

