- 価格
-
4638万円~7598万円
月々の支払い額を見る
- 専有面積
-
58.80㎡~83.02㎡
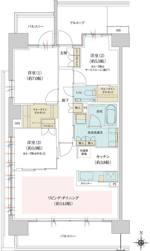
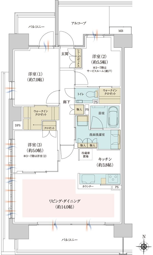
- 間取り
-
1LDK+サービスルーム(納戸)~3LDK
間取りを見る(12件)
- 販売スケジュール
-
先着順申込受付中

