エイルマンション名島駅前の間取り一覧

お気に入りに
追加する
お気に入りに
追加済み

2LDK掲載2

3LDK掲載7

4LDK掲載3

※掲載の間取り図は監督官庁の指導、改良等により変更となる場合があります。あらかじめご了承ください。
※掲載の内容は、タイプ・階数・部位等により一部異なる場合があります。詳細につきましては、販売センターにて設計図書と合わせて担当者に必ずご確認ください。
WIC:ウォークインクローゼット
SC:シューズクローク

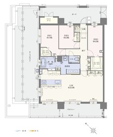
エイルマンション名島駅前 間取り Hタイプ
タイプ

Hタイプ

間取り

2LDK

専有面積

55.22㎡

バルコニー面積

10.92㎡

備考

ポーチ面積:3.30㎡
専有面積にトランクルーム面積0.93㎡含む

  • ポーチ
  • スロップシンク
  • トランクルーム
  • 南西向き
エイルマンション名島駅前 間取り Iタイプ
タイプ

Iタイプ

間取り

2LDK

専有面積

55.64㎡

バルコニー面積

10.76㎡

備考

ポーチ面積:2.63㎡
専有面積にトランクルーム面積:1.05㎡含む

  • ポーチ
  • スロップシンク
  • トランクルーム
  • 南西向き
エイルマンション名島駅前 間取り Kタイプ MenuPlan2
タイプ

Kタイプ MenuPlan2

間取り

3LDK+3WIC+SC

専有面積

101.62㎡

バルコニー面積

20.85㎡

備考

ルーフバルコニー面積:31.58㎡
ポーチ面積:20.50㎡
専有面積にトランクルーム面積2.62㎡含む

  • ポーチ
  • ウォークインクローゼット
  • シューズインクローゼット
  • 出入口が2か所以上あるキッチン
  • 浴室に窓
  • L字バルコニー
  • ルーフバルコニー
  • トランクルーム
  • 南西向き
エイルマンション名島駅前 間取り Nタイプ Menu Plan3
タイプ

Nタイプ Menu Plan3

間取り

3LDK+3WIC+SC

専有面積

107.04㎡

バルコニー面積

20.58㎡

備考

ルーフバルコニー面積:40.36㎡
ポーチ面積:21.53㎡
専有面積にトランクルーム面積3.64㎡含む

  • ポーチ
  • ウォークインクローゼット
  • シューズインクローゼット
  • 出入口が2か所以上あるキッチン
  • 浴室に窓
  • 2面バルコニー
  • L字バルコニー
  • ルーフバルコニー
  • スロップシンク
  • トランクルーム
  • 南西向き
エイルマンション名島駅前 間取り Rタイプ MenuPlan2
タイプ

Rタイプ MenuPlan2

間取り

3LDK+3WIC+SC

専有面積

106.48㎡

バルコニー面積

41.62㎡

備考

ルーフバルコニー面積:11.46㎡
ポーチ面積:10.45㎡
専有面積にトランクルーム面積2.41㎡含む

  • ポーチ
  • 玄関からリビングが見えない間取り
  • ウォークインクローゼット
  • シューズインクローゼット
  • 出入口が2か所以上あるキッチン
  • 浴室に窓
  • 3面バルコニー
  • L字バルコニー
  • ルーフバルコニー
  • スロップシンク
  • 南東向き
エイルマンション名島駅前 間取り Aタイプ MenuPlan1
タイプ

Aタイプ MenuPlan1

間取り

3LDK+WIC+SC+N

専有面積

83.32㎡

バルコニー面積

34.05㎡

備考

ポーチ面積:7.75㎡
専有面積にトランクルーム面積0.95㎡含む

  • ポーチ
  • 玄関からリビングが見えない間取り
  • ウォークインクローゼット
  • シューズインクローゼット
  • 出入口が2か所以上あるキッチン
  • 2面バルコニー
  • L字バルコニー
  • スロップシンク
  • トランクルーム
  • 南西向き
エイルマンション名島駅前 間取り Cタイプ
タイプ

Cタイプ

間取り

3LDK+WIC

専有面積

69.14㎡

バルコニー面積

11.11㎡

備考

ポーチ面積:5.70㎡
専有面積にトランクルーム面積:0.94㎡

  • ウォークインクローゼット
  • スロップシンク
  • トランクルーム
  • 南西向き
エイルマンション名島駅前 間取り E1タイプ
タイプ

E1タイプ

間取り

3LDK+WIC

専有面積

68.2㎡

バルコニー面積

13.37㎡

備考

ポーチ面積:7.73㎡
専用庭面積:22.84㎡
専有面積にトランクルーム面積1.20㎡含む

  • ポーチ
  • ウォークインクローゼット
  • 出入口が2か所以上あるキッチン
  • スロップシンク
  • テラス
  • 専用庭
  • トランクルーム
  • 南西向き
エイルマンション名島駅前 間取り Gタイプ
タイプ

Gタイプ

間取り

3LDK+WIC

専有面積

65.97㎡

バルコニー面積

11.68㎡

備考

ポーチ面積:6.00㎡
専有面積にトランクルーム面積0.97㎡含む

  • ポーチ
  • ウォークインクローゼット
  • スロップシンク
  • トランクルーム
  • 南西向き
エイルマンション名島駅前 間取り Rタイプ
タイプ

Rタイプ

間取り

4LDK+WIC+SC

専有面積

106.48㎡

バルコニー面積

41.62㎡

備考

ルーフバルコニー面積:11.46㎡
ポーチ面積:10.45㎡
専有面積にトランクルーム面積2.41㎡含む

  • ポーチ
  • 玄関からリビングが見えない間取り
  • ウォークインクローゼット
  • シューズインクローゼット
  • 出入口が2か所以上あるキッチン
  • 浴室に窓
  • 3面バルコニー
  • L字バルコニー
  • ルーフバルコニー
  • スロップシンク
  • トランクルーム
  • 南東向き
エイルマンション名島駅前 間取り Aタイプ
タイプ

Aタイプ

間取り

4LDK+WIC+SC

専有面積

83.32㎡

バルコニー面積

34.05㎡

備考

ポーチ面積:7.75㎡
専有面積にトランクルーム面積0.95㎡含む

  • ポーチ
  • 玄関からリビングが見えない間取り
  • ウォークインクローゼット
  • シューズインクローゼット
  • 出入口が2か所以上あるキッチン
  • 2面バルコニー
  • L字バルコニー
  • スロップシンク
  • トランクルーム
  • 南西向き
エイルマンション名島駅前 間取り Jタイプ
タイプ

Jタイプ

間取り

4LDK+WIC+SC

専有面積

86.05㎡

バルコニー面積

29.03㎡

備考

ポーチ面積:12.29㎡
専有面積にトランクルーム面積1.57㎡を含む

  • ポーチ
  • 可変式間仕切り
  • ウォークインクローゼット
  • シューズインクローゼット
  • 出入口が2か所以上あるキッチン
  • 浴室に窓
  • 3面バルコニー
  • スロップシンク
  • トランクルーム
  • 南西向き

このページの一番上へ