- 価格
-
4020万円~8950万円
月々の支払い額を見る
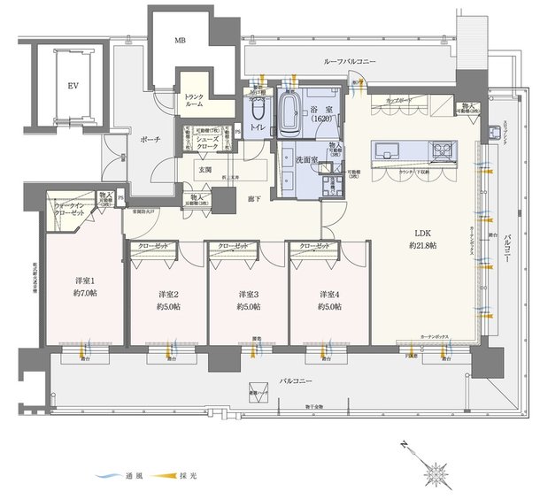
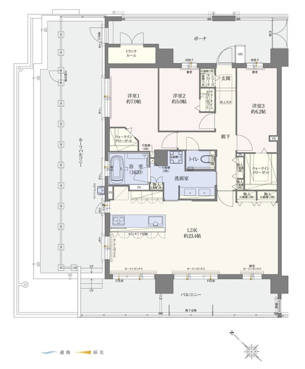
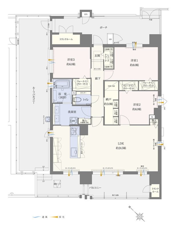
- 専有面積
-
55.22㎡~107.04㎡
- 間取り
-
2LDK、3LDK、4LDK
間取りを見る(12件)
- 販売スケジュール
-
先着順申込受付中

