間取り
この物件の詳細情報に戻る3LDK掲載7件
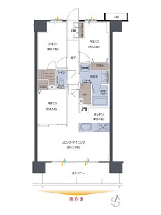
N:納戸 WIC:ウォークインクロゼット SC:シューズクロゼット
※掲載の間取図は計画段階の図面を基に描き起こしたものであり今後変更になる可能性があります。
※セレクトプランは有償となります。詳しくは係員までお問い合わせください。
関連する他の物件も見てみる
特徴
- 子どもと暮らす(7)
- ウォークインクローゼット(6)
- 浴室暖房換気乾燥機(6)
- I型キッチン(6)
- ペット可(6)
- ハンズフリーキー(6)
- 食器洗い乾燥機(食洗機)(6)
- 対面キッチン(6)
- 平置き駐車場(6)
- 複層ガラス(ペアガラス)(6)
- モデルルーム公開中(5)
- 販売前・販売予定(5)
- 南向き(5)
- 全戸南向き(5)
- 宅配ボックス(5)
- 駐車場100%以上(5)
- アイランドキッチン(4)
- エコマンション(4)
- 可変式間仕切り(4)
- 二重床/二重天井(4)
- ラウンジ(3)
- 一括受電サービス(3)
- バリアフリー(3)
- 24時間ゴミ出し可能(3)
- カスタマイズ/プランセレクト可能(2)
- オンラインで相談・見学・商談可能(2)
地域
間取り
価格帯
不動産会社
駅
沿線

