- 価格
-
3100万円台~5500万円台(100万円単位)(予定)
月々の支払い額を見る
- 専有面積
-
73.95㎡~93.44㎡
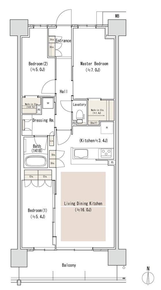
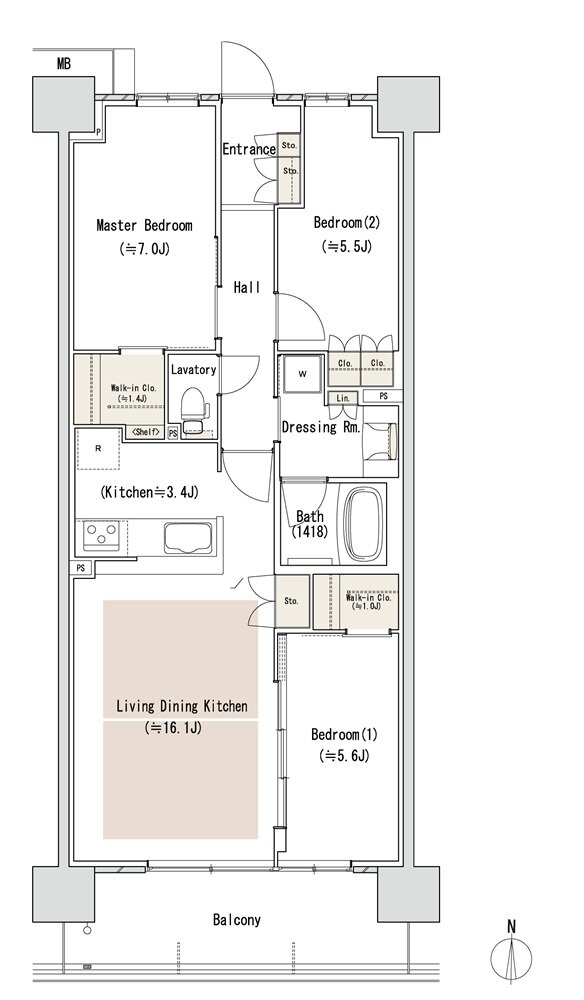
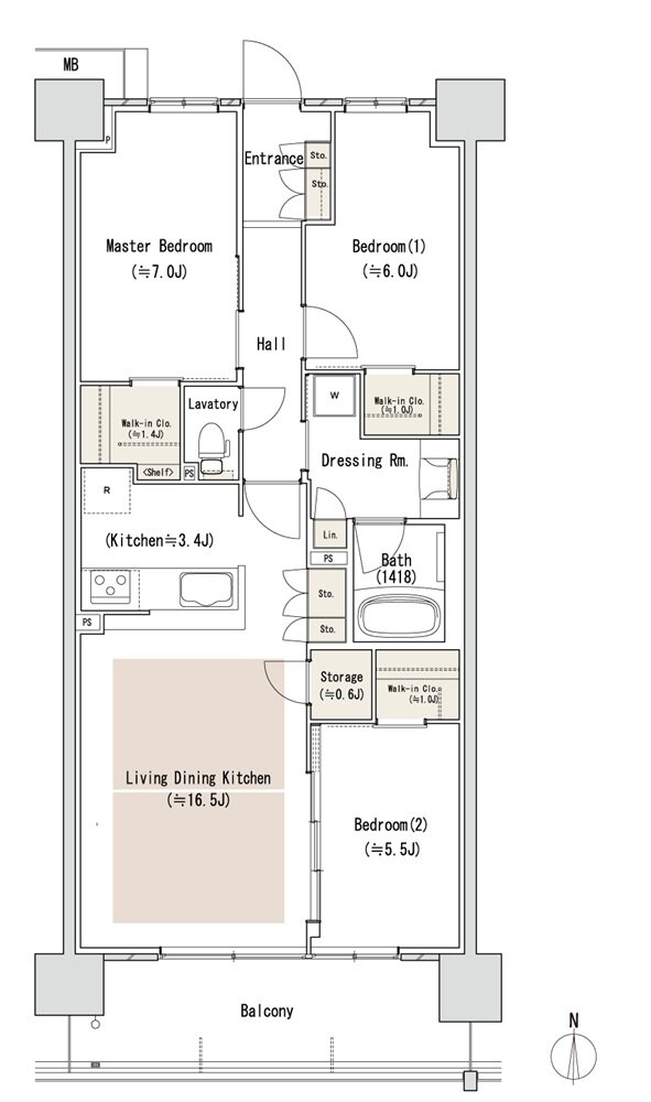
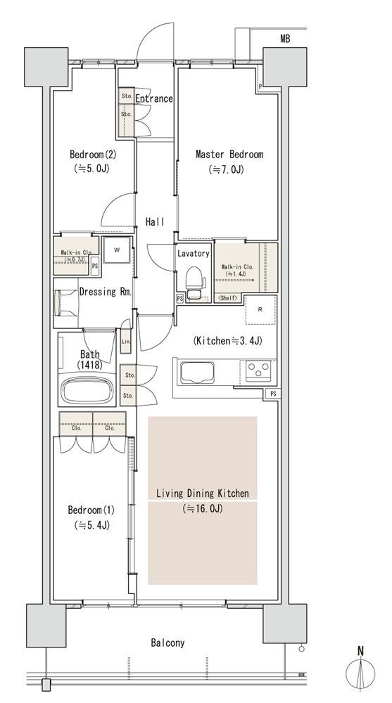
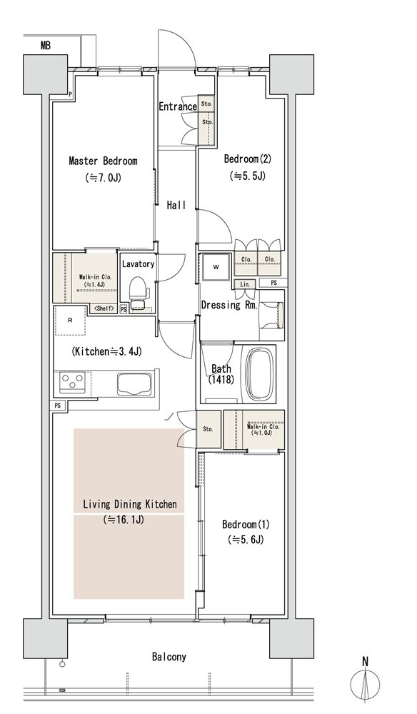
- 間取り
-
3LDK
間取りを見る(6件)
- 販売スケジュール
-
2025年11月上旬販売予定

