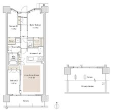
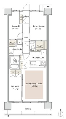
間取り
この物件の詳細情報に戻る3LDK掲載7件
WIC:ウォークインクロゼット S:納戸
※掲載の図面は設計段階の図面を基に描いたもので実際とは異なります。また施工上の理由及び改良等により変更となる場合がございます。
関連する他の物件も見てみる
特徴
- 子どもと暮らす(120)
- 対面キッチン(119)
- I型キッチン(115)
- ウォークインクローゼット(115)
- 平置き駐車場(99)
- 可変式間仕切り(94)
- 食器洗い乾燥機(食洗機)(90)
- モデルルーム公開中(90)
- 南向き(82)
- 浴室暖房換気乾燥機(80)
- 床暖房(77)
- 宅配ボックス(76)
- 販売前・販売予定(57)
- 防災設備(57)
- 駐車場100%以上(50)
- 24時間ゴミ出し可能(49)
- ラウンジ(43)
- 南向き中心(29)
- 広いリビング(28)
- 東向き(27)
- 大規模マンション(19)
- テラス(12)
- ゲストルーム(7)
- テレワーク・在宅勤務におすすめ(6)
- 専用庭(3)
地域
間取り
価格帯
不動産会社
駅
沿線

