- 価格
-
価格未定(予定)
- 専有面積
-
44.07㎡~104.09㎡
- 間取り
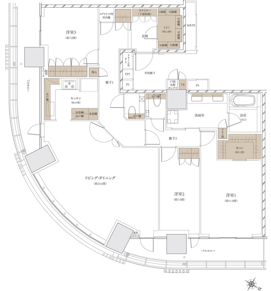
-
1LDK~4LDK
間取りを見る(8件)
- 販売スケジュール
-
〇2026年1月中旬販売開始予定

