- 価格
-
9390万円
月々の支払い額を見る
- 専有面積
-
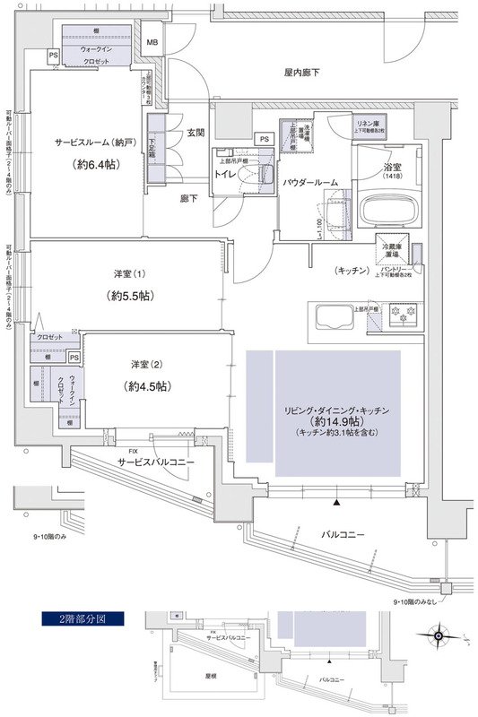
74.98㎡
- 間取り
-
2LDK+S(納戸)
間取りを見る(1件)
- 販売スケジュール
-
先着順申込み受付中

